
4-bedroom house for sale in the centre of Vilvoorde
€ 315 000
Play video




Show +27 photo(s)



























House
2 facades / enclosed building
4 bedrooms
1 bathroom(s)
110 m² habitable sp.
110 m² ground sp.
F
Property code: 1415955
Description of the property
Specifications
Characteristics
General
Habitable area (m²)
110.00m²
Soil area (m²)
110.00m²
Surface type
Brut
Plot orientation
North-East
Surroundings
Centre
Residential
Near school
Close to public transport
Near park
Near railway station
Access roads
Hospital nearby
Taxable income
€701,00
Heating
Heating type
Central heating
Heating elements
Radiators
Central heating boiler, furnace
Heating material
Gas
Miscellaneous
Joinery
Wood
Single glazing
Double glazing
Isolation
Roof
Floor slab
Glazing
Warm water
Gas boiler
Building
Year built
from 1900 to 1918
Amount of floors
2
Miscellaneous
Manual roller shutters
Lift present
No
Details
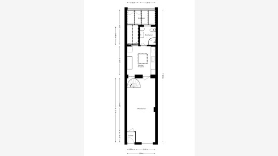
Entrance hall
Living room, lounge
Kitchen
Bathroom
Veranda
Night hall
Bedroom
Bedroom
Night hall
Bedroom
Bedroom
Attic
Basement
Garden
Garden shed
Technical and legal info
General
Protected heritage
No
Recorded inventory of immovable heritage
Yes
Energy & electricity
Electrical inspection
Inspection report - non-compliant
Utilities
Gas
Electricity
Sewer system connection
City water
Energy performance certificate
Yes
Energy label
F
Certificate number
20251017-0003712211-RES-1
Calculated specific energy consumption
549
Planning information
Urban Planning Permit
Property built before 1962
Urban Planning Obligation
No
In Inventory of Unexploited Business Premises
No
Subject of a Redesignation Plan
No
Summons
Geen rechterlijke herstelmaatregel of bestuurlijke maatregel opgelegd
Subdivision Permit Issued
No
Pre-emptive Right to Spatial Planning
No
Urban destination
Residential area
Flood Area
Property not located in a flood plain/area
P(arcel) Score
klasse A
G(building) Score
klasse A
Renovation Obligation
Van toepassing/Applicable
In water sensetive area
Niet van toepassing/Non-applicable
Close
