
Ruime te renoveren villa in gezellige verkaveling Grimbergen
Verkocht




+16 foto's weergeven
















Huis
Open
4 slaapkamer(s)
1 badkamer(s)
164 m² woonoppervlakte
740 m² grondoppervlakte
D
Pandcode: 1425001
Beschrijving van het pand
Specificaties
Kenmerken
Algemeen
Woonoppervlakte
164.00m²
Grondoppervlakte
740.00m²
Bebouwde oppervlakte
123.00m²
Breedte grond
31.80m
Type oppervlakte
Bruto
Oriëntatie perceel
Zuid
Oriëntatie voorgevel
Noord
Omgeving
Centrum
Groene omgeving
Residentieel
Nabij openbaar vervoer
Villawijk
Invalswegen
Kadastraal inkomen
€1883,00
Verwarming
Type
Centrale verwarming
Radiator
Radiatoren
Verwarmingsmateriaal
Stookolie
Diversen
Schrijnwerk
Hout
Dubbele beglazing
Isolatie
Zie energieprestatiecertificaat
Warm water
Boiler Elektrisch
Gebouw
Bouwjaar
1980
Aantal verdiepingen
1
Allerlei
Bouwmethode: Traditionele bouw
Lift aanwezig
Nee
Details
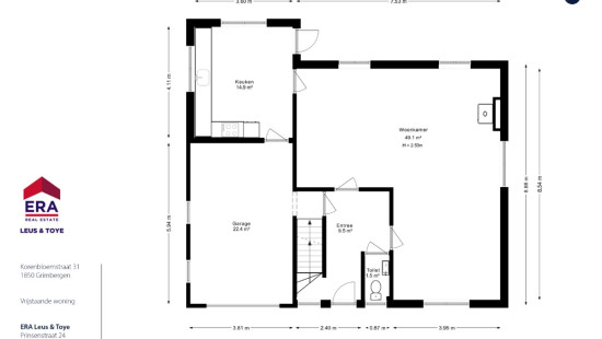
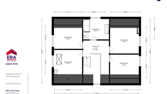
Slaapkamer
Slaapkamer
Slaapkamer
Slaapkamer
Inkomhal
Toilet
Woonkamer
Keuken
Garage
Badkamer
Nachthal
Technische en juridische informatie
Algemeen
Beschermd erfgoed
Nee
Opgenomen in een inventaris van onroerend erfgoed
Nee
Energie en elektriciteit
Elektrische keuring
Keuringsverslag - Niet conform
Nutsvoorzieningen
Elektriciteit
Aansluiting riolering
Kabeldistributie
Stadswater
Telefoon
ISDN aansluiting
Internet
EPC-certificaat
Ja
Energielabel
D
Certificaatnummer
20251017-0003712053-RES-1
Berekend specifiek energieverbruik
398
Planningsinformatie
Stedenbouwkundige vergunning
Vergunning uitgereikt
Stedenbouwkundige verplichting
Nee
In inventaris van de niet uitgebate bedrijfsruimten
Nee
Voorwerp van rooiplan
Ja
Herstelmaatregel
Geen rechterlijke herstelmaatregel of bestuurlijke maatregel opgelegd
Verkavelingsvergunning uitgereikt
Nee
Voorkoopsrecht ruimtelijke ordening
Nee
Stedelijke bestemming
Woongebied
P(erceel) score
klasse B
G(ebouw) score
klasse A
Renovatieverplichting
Niet van toepassing/Non-applicable
In watergevoelig gebied
Niet van toepassing/Non-applicable
Sluiten
