
House
Semi-detached
3 bedrooms
1 bathroom(s)
170 m² habitable sp.
543 m² ground sp.
D
Property code: 1416781
Specifications
Characteristics
General
Habitable area (m²)
170.00m²
Soil area (m²)
543.00m²
Surface type
Brut
Surroundings
Green surroundings
Rural
Near school
Close to public transport
Taxable income
€716,00
Comfort guarantee
Basic
Heating
Heating type
Central heating
Heating elements
Convectors
Heating material
Gas
Miscellaneous
Joinery
PVC
Double glazing
Isolation
Detailed information on request
Warm water
Flow-through system on central heating
Building
Year built
1976
Miscellaneous
Air conditioning
Alarm
Manual roller shutters
Lift present
No
Details
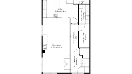
Bedroom
Bedroom
Bedroom
Bathroom
Laundry area
Living room, lounge
Kitchen
Multi-purpose room
Attic
Basement
Technical and legal info
General
Protected heritage
No
Recorded inventory of immovable heritage
No
Energy & electricity
Electrical inspection
Inspection report pending
Utilities
Gas
Electricity
Internet
Water softener
Energy label
D
Certificate number
20230814-00029641179-RES-1
Calculated specific energy consumption
343
Planning information
Urban Planning Permit
No permit issued
Urban Planning Obligation
No
In Inventory of Unexploited Business Premises
No
Subject of a Redesignation Plan
No
Summons
Geen rechterlijke herstelmaatregel of bestuurlijke maatregel opgelegd
Subdivision Permit Issued
No
Pre-emptive Right to Spatial Planning
No
Urban destination
Residential area
Flood Area
Property not located in a flood plain/area
P(arcel) Score
klasse A
G(building) Score
klasse A
Renovation Obligation
Niet van toepassing/Non-applicable
In water sensetive area
Niet van toepassing/Non-applicable
Close
