
Commercial House with Garden in the Heart of Neufchâteau
In option - price on demand
Play video




Show +14 photo(s)














House
2 facades / enclosed building
6 bedrooms
3 bathroom(s)
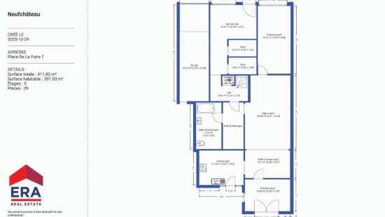
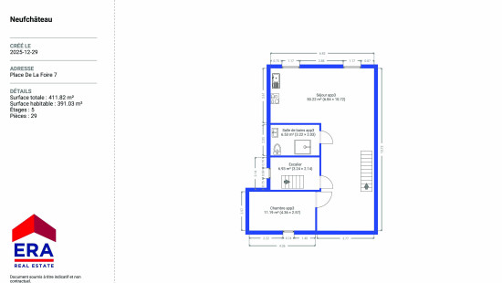
391 m² habitable sp.
840 m² ground sp.
G
Property code: 1439484
Description of the property
Specifications
Characteristics
General
Habitable area (m²)
391.03m²
Soil area (m²)
840.00m²
Built area (m²)
411.82m²
Width surface (m)
9.00m
Surface type
Brut
Plot orientation
North
Orientation frontage
South
Surroundings
Tourist zone
Near school
Close to public transport
Near railway station
Access roads
Taxable income
€1698,00
Heating
Heating type
Central heating
Heating elements
Central heating boiler, furnace
Heating material
Gas
Miscellaneous
Joinery
PVC
Double glazing
Isolation
Roof
Warm water
Boiler on central heating
Building
Year built
1949
Lift present
No
Details
Garden
Basement
Basement
Hall
Basement
Basement
Garage
Entrance hall
Bedroom
Basement
Basement
Hall
Bathroom
Living room, lounge
Kitchen
Dining room
Bedroom
Bedroom
Living room, lounge
Bathroom
Bedroom
Living room, lounge
Bathroom
Hall
Bedroom
Bedroom
Technical and legal info
General
Protected heritage
No
Recorded inventory of immovable heritage
No
Energy & electricity
Electrical inspection
Inspection report - non-compliant
Utilities
Gas
Electricity
Sewer system connection
City water
Energy performance certificate
Yes
Energy label
G
E-level
G
Certificate number
20180118002136
Calculated specific energy consumption
542
CO2 emission
9.00
Calculated total energy consumption
82792
Planning information
Urban Planning Permit
Property built before 1962
Urban Planning Obligation
Yes
In Inventory of Unexploited Business Premises
No
Subject of a Redesignation Plan
No
Summons
Geen rechterlijke herstelmaatregel of bestuurlijke maatregel opgelegd
Subdivision Permit Issued
No
Pre-emptive Right to Spatial Planning
No
Renovation Obligation
Niet van toepassing/Non-applicable
In water sensetive area
Niet van toepassing/Non-applicable
Close
