
Nieuwbouw appartement te koop in Zulte centrum
€ 315 420




+13 foto's weergeven













6% btw onder voorwaarden
Appartement
Open
1 slaapkamer(s)
1 badkamer(s)
92 m² woonoppervlakte
0 m² grondoppervlakte
A
Pandcode: 1475734
Beschrijving van het pand
Investeer in vastgoed
Dit project heeft units die geschikt zijn als investering. Gebruik onze simulator om je rendement te berekenen of neem contact met ons op.
Specificaties
Kenmerken
Algemeen
Woonoppervlakte
91.58m²
Grondoppervlakte
0.00m²
Type oppervlakte
Bruto
Oriëntatie perceel
Noord-West
Oriëntatie voorgevel
Zuid-Oost
Omgeving
Centrum
Woonkern
Verwarming
Type
Centrale verwarming
Radiator
Vloerverwarming
Warmterecuperatie
Verwarmingsmateriaal
Warmtepomp (geothermisch)
Diversen
Schrijnwerk
Aluminium
PVC
Isolatie
Zie lastenboek
Warm water
Warmtepomp
Gebouw
Bouwjaar
2025
Verdieping
1
Allerlei
Videofoon
Lift aanwezig
Ja
Details
Slaapkamer
Badkamer
Woonkamer
Keuken
Terras
Technische en juridische informatie
Algemeen
Beschermd erfgoed
Nee
Opgenomen in een inventaris van onroerend erfgoed
Nee
Energie en elektriciteit
Elektrische keuring
Keuringsverslag - Conform
Nutsvoorzieningen
Elektriciteit
Aansluiting riolering
Stadswater
Internet
Energielabel
A
Berekend specifiek energieverbruik
100
Planningsinformatie
Stedenbouwkundige vergunning
Vergunning uitgereikt
Stedenbouwkundige verplichting
Nee
In inventaris van de niet uitgebate bedrijfsruimten
Nee
Voorwerp van rooiplan
Nee
Herstelmaatregel
Geen rechterlijke herstelmaatregel of bestuurlijke maatregel opgelegd
Verkavelingsvergunning uitgereikt
Nee
Voorkoopsrecht ruimtelijke ordening
Nee
Stedelijke bestemming
Woongebied
P(erceel) score
klasse A
G(ebouw) score
Onbekend
Renovatieverplichting
Niet van toepassing/Non-applicable
In watergevoelig gebied
Niet van toepassing/Non-applicable

Sluiten

| Unit | Type | Bewoonbare oppervlakte | Aantal slaapkamers (min) | Oppervlakte terras | Oppervlakte tuin | E-peil | Prijs (excl. kosten) | Meer info |
|---|---|---|---|---|---|---|---|---|
| 0.4 | Appartement | 116.44 m² | 2 | 19.31 m² | 110.52 m² | 25 | € 412 976 | Pand bekijken |
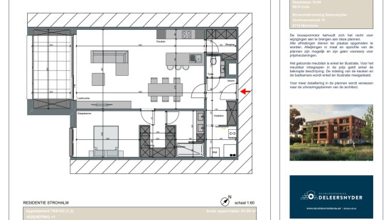
| 1.3 | Appartement | 91.58 m² | 1 | 15.50 m² | - | 25 | € 315 420 | |
| 1.1 | Appartement | 115.85 m² | 2 | - | - | 25 | Verkocht | - |
| 1.2 | Appartement | 112.18 m² | 2 | - | - | 25 | Verkocht | - |
| 1.4 | Appartement | 89.02 m² | 2 | - | - | 25 | Verkocht | - |
| 1.5 | Appartement | 100.37 m² | 2 | - | - | 25 | Verkocht | - |
| 2.2 | Appartement | 112.18 m² | 2 | - | - | 25 | Verkocht | - |
| 3.3 | Appartement | 90.91 m² | 2 | - | - | 25 | Verkocht | - |
| 3.1 | Appartement | 156.27 m² | 2 | - | - | 25 | Verkocht | - |
| 0.2 | Appartement | 72.03 m² | 1 | - | - | 25 | Verkocht | - |
| 0.3 | Appartement | 90.00 m² | 1 | - | - | 25 | Verkocht | - |
| 2.3 | Appartement | 91.58 m² | 1 | - | - | 25 | Verkocht | - |
| 3.2 | Appartement | 92.28 m² | 1 | - | - | 25 | Verkocht | - |
| 2.1 | Appartement | 115.85 m² | 2 | 22.82 m² | - | 25 | Verkocht | - |
| 2.4 | Appartement | 89.02 m² | 2 | 12.18 m² | - | 25 | Verkocht | - |
| 2.5 | Appartement | 100.37 m² | 2 | 20.31 m² | - | 25 | Verkocht | - |
| 3.4 | Appartement | 73.01 m² | 1 | - | - | 25 | Verkocht | - |
| 0.1 | Handelspand | 150.00 m² | 0 | - | - | 25 | Verkocht | - |
| Unit | Type | Bewoonbare oppervlakte | Aantal slaapkamers (min) | Oppervlakte terras | Oppervlakte tuin | E-peil | Prijs (excl. kosten) | Meer info |
|---|---|---|---|---|---|---|---|---|
| P01 | Garage | 12.00 m² | 0 | - | - | - | € 22 000 | - |
| P03 | Garage | 12.00 m² | 0 | - | - | - | € 23 500 | - |
| P04 | Garage | 12.00 m² | 0 | - | - | - | € 25 000 | - |
| P08 | Garage | 12.00 m² | 0 | - | - | - | € 23 000 | - |
| P09 | Garage | 12.00 m² | 0 | - | - | - | € 23 000 | - |
| P10 | Garage | 12.00 m² | 0 | - | - | - | € 22 000 | - |
| P02 | Garage | 12.00 m² | 0 | - | - | - | € 23 000 | - |
| P06 | Garage | 12.00 m² | 0 | - | - | - | € 21 000 | - |
| P07 | Garage | 12.00 m² | 0 | - | - | - | € 21 000 | - |
| P10 | Garage | 12.00 m² | 0 | - | - | - | € 22 000 | - |