Beschrijving van het pand

WEMMEL – Deschuyffeleerdreef 15
 
Eengezinswoning met 3 slaapkamers – tuin – gegeerde ligging
 
Op wandelafstand van de Markt van Wemmel bevindt zich deze aangename eengezinswoning in een gegeerde en groene buurt.
De woning beschikt over een lichtrijke leefruimte, een ingerichte keuken, een vergunde veranda en een oostgerichte tuin.
Op de verdieping bevinden zich drie slaapkamers en een badkamer. De zolder biedt bovendien extra potentieel om om te vormen tot een bijkomende kamer of hobbyruimte. Uitstekende ligging nabij bushalte (1 min), winkels, goede verbindingswegen, Plantentuin van Meise, Relegem, Merchtem en Meise.
 
Elektrische installatie niet conform
EPC : F – renovatieverplichting van toepassing
 
Een mooie renovatiekans op een toplocatie in Wemmel, vlak bij het centrum en alle faciliteiten.

Specificaties

Kenmerken

Algemeen

Woonoppervlakte
142.00m²
Grondoppervlakte
313.00m²
Bebouwde oppervlakte
73.00m²
Exploiteerbare oppervlakte
189.00m²
Breedte grond
9.50m
Type oppervlakte
Bruto
Oriëntatie perceel
Oost
Omgeving
Centrum
Stadsrand
Handelswijk
Groene omgeving
Omgeving school
Nabij openbaar vervoer
Administratief centrum
Invalswegen
Kadastraal inkomen
€1167,00

Verwarming

Type
Centrale verwarming
Radiator
Radiatoren
Verwarmingsmateriaal
Gas

Diversen

Schrijnwerk
PVC
Dubbele beglazing
Isolatie
Beglazing
Zie energieprestatiecertificaat
Warm water
Doorstroomsysteem op CV

Gebouw

Bouwjaar
1959
Aantal verdiepingen
3
Allerlei
Bouwmethode: Betonbouw
Lift aanwezig
Nee

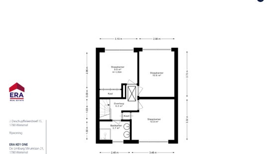
Slaapkamer

Berekende oppervlakte
10 m²
Breedte
3.6
Lengte
2.9
1 slaapkamer(s) mogelijk

Slaapkamer

Berekende oppervlakte
11 m²
Breedte
3.6
Lengte
3.1
1 slaapkamer(s) mogelijk

Slaapkamer

Berekende oppervlakte
10 m²
Breedte
3.35
Lengte
2.9
1 slaapkamer(s) mogelijk

Badkamer

Berekende oppervlakte
4 m²
Breedte
1.6
Lengte
2.5

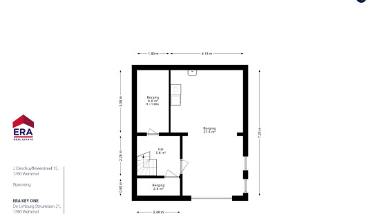
Garage

Berekende oppervlakte
23 m²
Breedte
3.37
Lengte
6.89
Kamer items
Verlichting

Terras

Veranda

Berekende oppervlakte
22 m²
Breedte
6.38
Lengte
3.41

Kelder

Berekende oppervlakte
3 m²
Breedte
1.8
Lengte
1.8

Kelder

Berekende oppervlakte
2 m²
Breedte
2.5
Lengte
0.93

Kelder

Berekende oppervlakte
4 m²
Breedte
2.5
Lengte
1.65

Living

Berekende oppervlakte
25 m²
Breedte
3.5
Lengte
7.15

Keuken

Berekende oppervlakte
12 m²
Breedte
3.2
Lengte
3.6

Inkomhal

Berekende oppervlakte
7 m²
Breedte
3.5
Lengte
2.1

Toilet

Zolder

Berekende oppervlakte
22 m²
Breedte
6.13
Lengte
7.23
Kamer items
Zolderluik
Vlizotrap
1 slaapkamer(s) mogelijk

Nachthal

Berekende oppervlakte
5 m²
Breedte
1.65
Lengte
3.1

Parkeerplaats

Tuin

Berekende oppervlakte
165 m²
Kamer eigenschappen
Orientatie oost

Algemeen

Beschermd erfgoed
Nee
Opgenomen in een inventaris van onroerend erfgoed
Nee

Energie en elektriciteit

Elektrische keuring
Keuringsverslag - Niet conform
Nutsvoorzieningen
Gas
Elektriciteit
Aansluiting riolering
Kabeldistributie
Stadswater
Telefoon
Internet
EPC-certificaat
Ja
Energielabel
F
Certificaatnummer
20251024-0003717691-RES-1
Berekend specifiek energieverbruik
564

Planningsinformatie

Stedenbouwkundige vergunning
Woning gebouwd voor 1962
Stedenbouwkundige verplichting
Ja
In inventaris van de niet uitgebate bedrijfsruimten
Nee
Voorwerp van rooiplan
Nee
Verkavelingsvergunning uitgereikt
Nee
Voorkoopsrecht ruimtelijke ordening
Nee
Stedelijke bestemming
Woongebied
Overstromingsgebied
Onroerend goed, niet gelegen in een overstromingsgebied
P(erceel) score
klasse A
G(ebouw) score
klasse A
Renovatieverplichting
Van toepassing/Applicable
In watergevoelig gebied
Niet van toepassing/Non-applicable
Sluiten
Nicolas Neefs
J. Deschuyffeleerdreef 15 , 1780 Wemmel