Beschrijving van het pand

ERA LABELIMMO presenteert u dit ruime en lichte landhuis met een woonoppervlakte van 170 m². Het is gelegen in Huccorgne, op een rustige locatie te midden van een groene omgeving. Het terrein bestaat uit twee percelen, waardoor u de mogelijkheid heeft om een bijgebouw te realiseren of het onbebouwde deel te verkopen. 

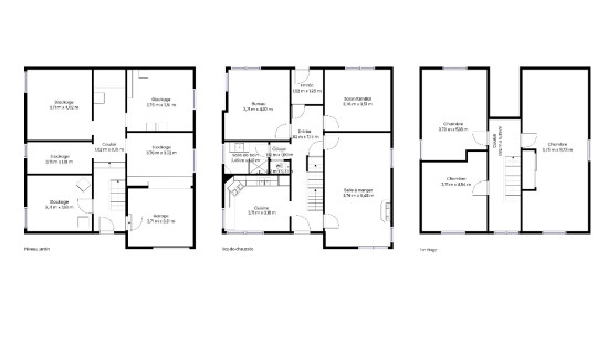
Op de begane grond vindt u de hal met toilet, de ruime eetkamer van 24 m² met houtkachel, de keuken, de woonkamer, een groot kantoor van 15 m² en de doucheruimte.

Op de eerste verdieping leidt de overloop naar 3 grote slaapkamers van 19, 17 en 34 m².

Op tuinniveau bevinden zich ruime kelders met de stookruimte, de regenwaterreservoir aangesloten op het toilet en een garage van 12 m² voor parkeergemak en opslag.

Buiten is er een prachtige tuin met bomen, een terras en een zwembad, met een rustgevend uitzicht over de vallei. Het zwembad wordt verwarmd via de centrale verwarming (wordt verkocht met een reinigingsrobot en een zomerzeil). 

Zonnepanelen (3,3 kWp), alarmsysteem, geïsoleerd dak, houten kozijnen met dubbele beglazing, stookolieketel (1997), regenwatertank (+-1200 l), aangesloten op de riolering - Gemeentelijke belasting: 651 €.

EPB: D (335 kWh/m²/jaar) nr. 20260304034056

Biedingen vanaf 339.000 €, onder voorbehoud van aanvaarding door de eigenaar. Informatie is niet bindend en wordt ter indicatie gegeven. Deze advertentie vormt geen aanbod.

Specificaties

Kenmerken

Algemeen

Woonoppervlakte
169.60m²
Grondoppervlakte
1731.00m²
Exploiteerbare oppervlakte
254.70m²
Type oppervlakte
Netto
Oriëntatie perceel
Oost
Oriëntatie voorgevel
West
Omgeving
Groene omgeving
Landelijk
Omgeving school
Nabij openbaar vervoer
In het dal
Vrij zicht
Kadastraal inkomen
€651,00

Verwarming

Type
Centrale verwarming
Radiator
Radiatoren
Verwarmingsketel
Verwarmingsmateriaal
Stookolie

Diversen

Schrijnwerk
Hout
Dubbele beglazing
Isolatie
Detailinfo op aanvraag
Warm water
Boiler op CV

Gebouw

Bouwjaar
1956
Allerlei
Alarm
Lift aanwezig
Nee

Inkomhal

Berekende oppervlakte
4 m²

Hal

Berekende oppervlakte
14 m²

Toilet

Berekende oppervlakte
1 m²

Woonkamer

Berekende oppervlakte
13 m²

Bureel

Berekende oppervlakte
15 m²
1 slaapkamer(s) mogelijk

Eetkamer

Berekende oppervlakte
24 m²

Keuken

Berekende oppervlakte
12 m²

Nachthal

Berekende oppervlakte
12 m²

Slaapkamer

Berekende oppervlakte
19 m²
1 slaapkamer(s) mogelijk

Slaapkamer

Berekende oppervlakte
17 m²
1 slaapkamer(s) mogelijk

Slaapkamer

Berekende oppervlakte
35 m²
1 slaapkamer(s) mogelijk

Kelder

Berekende oppervlakte
73 m²
Kamer items
Aansluiting droogkast
Aansluiting wasmachine
Ketelruimte
Wasruimte

Garage

Berekende oppervlakte
12 m²

Douchekamer

Berekende oppervlakte
5 m²

Algemeen

Beschermd erfgoed
Nee
Opgenomen in een inventaris van onroerend erfgoed
Nee

Energie en elektriciteit

Elektrische keuring
Keuringsverslag - Niet conform
Nutsvoorzieningen
Elektriciteit
Regenwaterput
Aansluiting riolering
Kabeldistributie
Fotovoltaïsche panelen
Stadswater
Telefoon
Internet
EPC-certificaat
Ja
Energielabel
D
E-peil
D
Certificaatnummer
20260304034056
Berekend specifiek energieverbruik
335
CO2-uitstoot
82.00
Berekend totaal energieverbruik
62367

Planningsinformatie

Stedenbouwkundige vergunning
Woning gebouwd voor 1962
Stedenbouwkundige verplichting
Nee
In inventaris van de niet uitgebate bedrijfsruimten
Nee
Voorwerp van rooiplan
Nee
Herstelmaatregel
Geen rechterlijke herstelmaatregel of bestuurlijke maatregel opgelegd
Verkavelingsvergunning uitgereikt
Nee
Voorkoopsrecht ruimtelijke ordening
Nee
Stedelijke bestemming
La zone d'habitat à caractère rural
Overstromingsgebied
Onroerend goed, niet gelegen in een overstromingsgebied
Renovatieverplichting
Niet van toepassing/Non-applicable
In watergevoelig gebied
Niet van toepassing/Non-applicable
Sluiten
Florian Joassin
Rue Chênia 3 , 4520 Wanze