Vrijstaande woning in Sint-Lenaarts

€ 485 000

Beschrijving van het pand

Te koop: vrijstaande woning in Sint-Lenaarts, gelegen in een rustige woonwijk nabij het centrum.
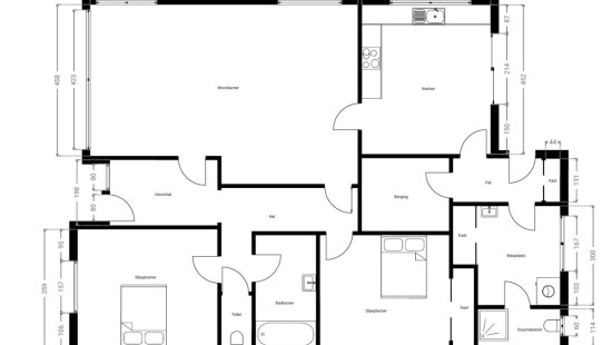
Deze goed onderhouden woning (bouwjaar 1994) bevindt zich in de Fruithoflaan, een rustige residentiële straat. De woning is naar eigen smaak te moderniseren, waardoor u de kans krijgt om uw persoonlijke stijl te realiseren. Met twee slaapkamers, twee badkamers en een praktische indeling is dit een ideale gezinswoning.
Bovendien is er nog een ruime zolder aanwezig die u eenvoudig kan omvormen naar extra slaapkamers.
Belangrijkste ruimtes:
• Woonkamer met veel lichtinval
• Keuken met directe toegang tot de tuin
• Twee slaapkamers met voldoende ruimte voor kasten
• Badkamer met ligbad en wastafel in meubel
• Douchekamer met douche, toilet en wastafel
• Wasplaats met spoelbak, aansluitingen voor wasmachine en droogkast, ingemaakte kasten
• Berging voor extra opslag
• Inkomhal en hal voor een vlotte circulatie
• Toilet met handenwasser
• Zolder die eenvoudig kan omgevormd worden naar extra slaapkamers
Troeven:
• Perfecte ligging in een rustige woonwijk
• Goed onderhouden woning
• Ruime zolder, mogelijkheid voor extra slaapkamers 
Contacteer ERA NOORD via 03 314 81 91 of info@eranoord.be voor meer informatie of een bezichtiging. 

Specificaties

Kenmerken

Algemeen

Woonoppervlakte
196.00m²
Grondoppervlakte
547.00m²
Bebouwde oppervlakte
207.00m²
Breedte grond
16.30m
Type oppervlakte
Bruto
Oriëntatie perceel
Noord-West
Oriëntatie voorgevel
Zuid-Oost
Omgeving
Residentieel
Nabij openbaar vervoer
Kadastraal inkomen
€1056,00

Verwarming

Type
Centrale verwarming
Radiator
Kachel(s)
Radiatoren
Verwarmingsmateriaal
Gas

Diversen

Schrijnwerk
PVC
Dubbele beglazing
Isolatie
Spouwisolatie
Dakisolatie
Warm water
Boiler gas

Gebouw

Bouwjaar
1994
Aantal verdiepingen
1
Allerlei
Rolluiken
Lift aanwezig
Nee

Slaapkamer

Kamer eigenschappen
Tegels
1 slaapkamer(s) mogelijk

Slaapkamer

Kamer eigenschappen
Tegels
1 slaapkamer(s) mogelijk

Zolder

3 slaapkamer(s) mogelijk

Keuken

Kamer eigenschappen
Tegels
Kamer items
Spoelbak dubbel
Vaatwasser
Koelkast
Oven
Kookplaat (Keramisch)

Woonkamer

Kamer eigenschappen
Tegels

Inkomhal

Kamer eigenschappen
Tegels

Badkamer

Kamer eigenschappen
Tegels
Kamer items
Ligbad
Wastafel enkel in meubel

Toilet

Kamer eigenschappen
Tegels
Kamer items
Met handenwasser

Wasplaats

Kamer eigenschappen
Tegels
Kamer items
Spoelbak enkel
Aansluiting droogkast
Aansluiting wasmachine
Ingemaakte kasten

Douchekamer

Kamer eigenschappen
Tegels
Kamer items
Douche
Toilet
Wastafel enkel

Berging

Kamer eigenschappen
Tegels

Hal

Algemeen

Beschermd erfgoed
Nee
Opgenomen in een inventaris van onroerend erfgoed
Nee

Energie en elektriciteit

Nutsvoorzieningen
Regenwaterput
Kabeldistributie
Stadswater
Telefoon
Energielabel
D
Berekend specifiek energieverbruik
355

Planningsinformatie

Stedenbouwkundige vergunning
Vergunning uitgereikt
Stedenbouwkundige verplichting
Nee
In inventaris van de niet uitgebate bedrijfsruimten
Nee
Voorwerp van rooiplan
Nee
Herstelmaatregel
Geen rechterlijke herstelmaatregel of bestuurlijke maatregel opgelegd
Verkavelingsvergunning uitgereikt
Nee
Voorkoopsrecht ruimtelijke ordening
Nee
Stedelijke bestemming
Woonuitbreidingsgebied
Overstromingsgebied
Onroerend goed, niet gelegen in een overstromingsgebied
P(erceel) score
klasse A
G(ebouw) score
klasse A
Renovatieverplichting
Niet van toepassing/Non-applicable
In watergevoelig gebied
Niet van toepassing/Non-applicable
Sluiten
Karolien Huybrechts
Fruithoflaan 76 , 2960 Sint-Lenaarts