
Huis
Gesloten
4 slaapkamers (5 mogelijk)
1 badkamer(s)
139 m² woonoppervlakte
125 m² grondoppervlakte
D
Pandcode: 1425715
Beschrijving van het pand
Specificaties
Kenmerken
Algemeen
Woonoppervlakte
139.00m²
Grondoppervlakte
125.00m²
Type oppervlakte
Netto
Omgeving
Omgeving school
Nabij openbaar vervoer
Nabij Park
Kadastraal inkomen
€478,00
Verwarming
Type
Centrale verwarming
Radiator
Radiatoren
Condensatieketel
Verwarmingsmateriaal
Gas
Diversen
Schrijnwerk
PVC
Dubbele beglazing
Isolatie
Zie energieprestatiecertificaat
Warm water
Hoogrendementsketel
Gebouw
Bouwjaar
van 1900 tot 1918
Aantal verdiepingen
2
Allerlei
Rolluiken
Lift aanwezig
Nee
Details
Slaapkamer
Slaapkamer
Slaapkamer
Slaapkamer
Polyvalente ruimte
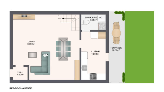
Living
Keuken
Badkamer
Wasplaats
Nachthal
Terras
Inkomhal
Stadstuin
Kelder
Technische en juridische informatie
Algemeen
Beschermd erfgoed
Nee
Opgenomen in een inventaris van onroerend erfgoed
Nee
Energie en elektriciteit
Elektrische keuring
Keuringsverslag - Conform
Nutsvoorzieningen
Gas
Elektriciteit
Aansluiting riolering
Kabeldistributie
Stadswater
Telefoon
Internet
EPC-certificaat
Ja
Energielabel
D
EPB
D
E-peil
D
Certificaatnummer
20251028000559
EPB-beschrijving
D
Berekend specifiek energieverbruik
304
CO2-uitstoot
56.00
Berekend totaal energieverbruik
50303
Planningsinformatie
Stedenbouwkundige vergunning
Vergunning uitgereikt
Stedenbouwkundige verplichting
Nee
In inventaris van de niet uitgebate bedrijfsruimten
Nee
Voorwerp van rooiplan
Nee
Herstelmaatregel
Geen rechterlijke herstelmaatregel of bestuurlijke maatregel opgelegd
Verkavelingsvergunning uitgereikt
Nee
Voorkoopsrecht ruimtelijke ordening
Nee
Stedelijke bestemming
La zone d'habitat
Overstromingsgebied
Onroerend goed, niet gelegen in een overstromingsgebied
Renovatieverplichting
Niet van toepassing/Non-applicable
In watergevoelig gebied
Niet van toepassing/Non-applicable


Sluiten




















