
Huis
Halfopen
3 slaapkamer(s)
2 badkamer(s)
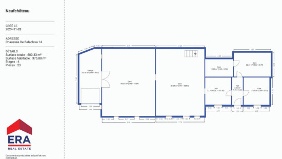
210 m² woonoppervlakte
783 m² grondoppervlakte
D
Pandcode: 1453267
Beschrijving van het pand
Specificaties
Kenmerken
Algemeen
Woonoppervlakte
210.00m²
Grondoppervlakte
783.00m²
Type oppervlakte
Bruto
Omgeving
Woonkern
Omgeving school
Nabij openbaar vervoer
Nabij treinstation
Invalswegen
Kadastraal inkomen
€1897,00
Verwarming
Type
Centrale verwarming
Radiator
Radiatoren
Verwarmingsketel
Verwarmingsmateriaal
Stookolie
Diversen
Schrijnwerk
Hout
Dubbele beglazing
Isolatie
Detailinfo op aanvraag
Warm water
Boiler op CV
Gebouw
Bouwjaar
van 1850 tot 1874
Lift aanwezig
Nee
Details
Garage
Kelder
Kelder
Kelder
Kelder
Kelder
Kelder
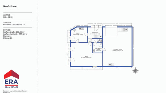
Hal
Keuken
Living
Atelier
Badkamer
Inkomhal
Bureel
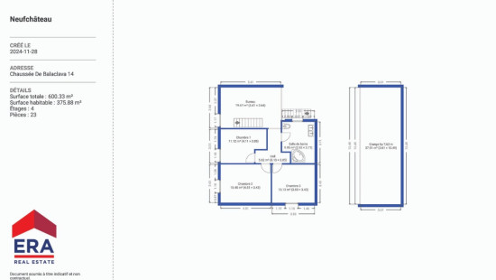
Slaapkamer
Slaapkamer
Slaapkamer
Badkamer
Hal
Atelier
Zolder
Tuin
Terras
Technische en juridische informatie
Algemeen
Beschermd erfgoed
Nee
Opgenomen in een inventaris van onroerend erfgoed
Nee
Energie en elektriciteit
Elektrische keuring
Keuringsverslag - Niet conform
Inhoud stookolietank
4000.00
Nutsvoorzieningen
Elektriciteit
Aansluiting riolering
Stadswater
Elektriciteit Nachttarief
Elektriciteit individueel
EPC-certificaat
Ja
Energielabel
D
E-peil
D
Certificaatnummer
20230905030810
Berekend specifiek energieverbruik
337
CO2-uitstoot
84.00
Berekend totaal energieverbruik
70930
Planningsinformatie
Stedenbouwkundige vergunning
Vergunning uitgereikt
Stedenbouwkundige verplichting
Ja
In inventaris van de niet uitgebate bedrijfsruimten
Nee
Voorwerp van rooiplan
Nee
Herstelmaatregel
Geen rechterlijke herstelmaatregel of bestuurlijke maatregel opgelegd
Verkavelingsvergunning uitgereikt
Nee
Voorkoopsrecht ruimtelijke ordening
Nee
Stedelijke bestemming
La zone d'habitat à caractère rural
Overstromingsgebied
Onroerend goed, niet gelegen in een overstromingsgebied
Renovatieverplichting
Niet van toepassing/Non-applicable
In watergevoelig gebied
Niet van toepassing/Non-applicable
Sluiten

















