Beschrijving van het pand

[[ DIT PAND NEEMT DEEL AAN DE ERA OPEN HUIZEN DAG OP 6/12 VAN 11:00 TOT 12:00 ]]

Ben je op zoek naar een centraal gelegen nieuwbouwwoning in Melsele? Gevonden!

Dit hedendaags nieuwbouwproject bestaat uit 9 woningen, allen voorzien van 3 ruime slaapkamers. Verder hebben de woningen ook een zonnige, zuidgerichte tuin
Door de duurzaamheid van de materialen, het gebruik van warmtepomp, vloerverwarming, zonnepanelen en een ventilatiesysteem, ben je verzekerd van een veilige toekomst. Bovendien wordt een E-peil van max 30 behaald. Hierdoor heb je niet alleen lagere energiefacturen maandelijks, maar krijg je ook gedurende 5 jaar korting op je onroerende voorheffing!

Mogelijkheid tot aankopen aan 6% BTW, onder voorwaarden. 
Bepaal als koper hoe jouw keuken er gaat uit zien. Verder is de woning al volledig afgewerkt. 
Na akte onmiddellijk bewoonbaar. 
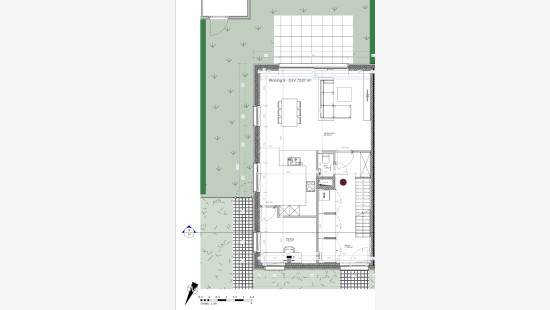
Indeling woning LOT 5: 
GLV: Je betreedt de woning in de inkomhal met gastentoilet. Wanneer je verder doorloopt kom je uit in een lichtrijke woonkamer (42m²) waar de open keuken volledig geïntegreerd is in het geheel.
Vanuit de keuken hebben je toegang tot een ruime berging of bureel (7m²). Vanuit de woonkamer heb je onmiddellijke toegang tot je eigen privatieve tuin. 
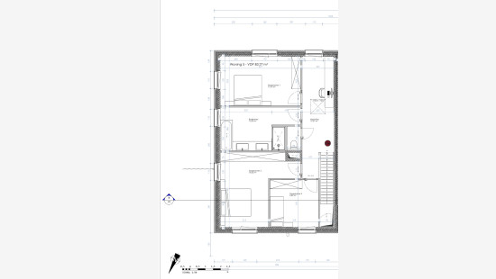
1eV: Op de eerste verdieping kan je 3 slaapkamers (19-17-10m²) terugvinden, de badkamer (13m²) en een apart toilet. In de inkomhal is extra ruimte voorzien om een bureau ruimte te creëren (9m²).

Er is ook een autostaanplaats gekoppeld aan deze woning.

Zie jij jezelf hier al thuiskomen?
Neem contact op met onze nieuwbouwspecialist.

Specificaties

Kenmerken

Algemeen

Woonoppervlakte
183.00m²
Grondoppervlakte
190.00m²
Type oppervlakte
Bruto
Oriëntatie perceel
Zuid
Oriëntatie voorgevel
Noord
Omgeving
Landelijk
Nabij openbaar vervoer
Invalswegen

Verwarming

Type
Individuele verwarming
Radiator
Vloerverwarming
Verwarmingsmateriaal
Warmtepomp (lucht)

Diversen

Schrijnwerk
Aluminium
Superisolerend hoogrendementsglas
Isolatie
Dak
Beglazing
Muur
Warm water
Warmtepomp

Gebouw

Bouwjaar
2023
Verdieping
0
Allerlei
Ventilatie
Lift aanwezig
Nee

Badkamer

Berekende oppervlakte
13 m²
Breedte
0

Berging

Berekende oppervlakte
4 m²
Breedte
0

Slaapkamer

Berekende oppervlakte
19 m²
Breedte
0
1 slaapkamer(s) mogelijk

Slaapkamer

Berekende oppervlakte
17 m²
Breedte
0
1 slaapkamer(s) mogelijk

Slaapkamer

Berekende oppervlakte
10 m²
Breedte
0
1 slaapkamer(s) mogelijk

Toilet

Berekende oppervlakte
1 m²
Breedte
0

Toilet

Berekende oppervlakte
1 m²
Breedte
0

Woonkamer

Berekende oppervlakte
42 m²
Breedte
0

Bureel

Berekende oppervlakte
7 m²
Breedte
0

Bureel

Berekende oppervlakte
9 m²
Breedte
0

Algemeen

Beschermd erfgoed
Nee
Opgenomen in een inventaris van onroerend erfgoed
Nee

Energie en elektriciteit

Elektrische keuring
Keuringsverslag - Conform
Nutsvoorzieningen
Regenwaterput
Stadswater
Elektriciteit modern
Gescheiden rioleringsstelsel
Energielabel
-

Planningsinformatie

Stedenbouwkundige vergunning
Vergunning uitgereikt
Stedenbouwkundige verplichting
Nee
In inventaris van de niet uitgebate bedrijfsruimten
Nee
Voorwerp van rooiplan
Nee
Verkavelingsvergunning uitgereikt
Nee
Voorkoopsrecht ruimtelijke ordening
Nee
Stedelijke bestemming
Woongebied
Renovatieverplichting
Niet van toepassing/Non-applicable
In watergevoelig gebied
Niet van toepassing/Non-applicable
Sluiten
Gert Verstuyft
Jonas De Groote
Koolputstraat 24 , 9120 Melsele (Beveren)