
Halfopen nieuwbouwwoning met 3 slaapkamers & zonnige tuin
€ 467 000




+17 foto's weergeven

















6% btw onder voorwaarden
Huis
Halfopen
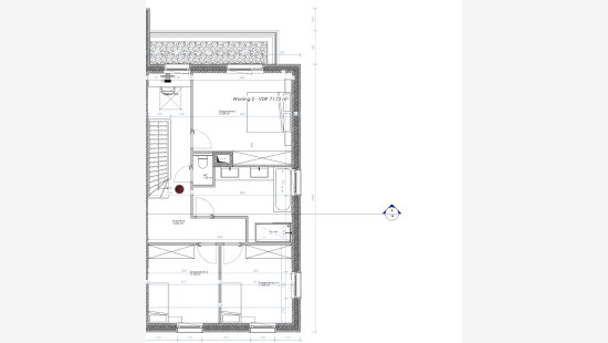
3 slaapkamer(s)
1 badkamer(s)
153 m² woonoppervlakte
235 m² grondoppervlakte
Pandcode: 1470115
Beschrijving van het pand
Specificaties
Kenmerken
Algemeen
Woonoppervlakte
153.00m²
Grondoppervlakte
235.00m²
Type oppervlakte
Bruto
Oriëntatie perceel
Zuid
Oriëntatie voorgevel
Noord
Omgeving
Landelijk
Nabij openbaar vervoer
Invalswegen
Verwarming
Type
Individuele verwarming
Radiator
Vloerverwarming
Verwarmingsmateriaal
Warmtepomp (lucht)
Diversen
Schrijnwerk
Aluminium
Superisolerend hoogrendementsglas
Isolatie
Dak
Beglazing
Muur
Warm water
Warmtepomp
Gebouw
Bouwjaar
2023
Verdieping
0
Allerlei
Ventilatie
Lift aanwezig
Nee
Details
Badkamer
Berging
Slaapkamer
Slaapkamer
Slaapkamer
Toilet
Toilet
Woonkamer
Tuin
Bureel
Technische en juridische informatie
Algemeen
Beschermd erfgoed
Nee
Opgenomen in een inventaris van onroerend erfgoed
Nee
Energie en elektriciteit
Elektrische keuring
Keuringsverslag - Conform
Nutsvoorzieningen
Regenwaterput
Stadswater
Elektriciteit modern
Gescheiden rioleringsstelsel
Energielabel
-
Planningsinformatie
Stedenbouwkundige vergunning
Vergunning uitgereikt
Stedenbouwkundige verplichting
Nee
In inventaris van de niet uitgebate bedrijfsruimten
Nee
Voorwerp van rooiplan
Nee
Herstelmaatregel
Geen rechterlijke herstelmaatregel of bestuurlijke maatregel opgelegd
Verkavelingsvergunning uitgereikt
Nee
Voorkoopsrecht ruimtelijke ordening
Nee
Stedelijke bestemming
Woongebied
Renovatieverplichting
Niet van toepassing/Non-applicable
In watergevoelig gebied
Niet van toepassing/Non-applicable


Sluiten


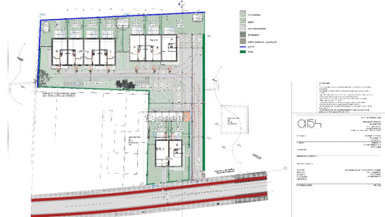
| Unit | Type | Subtype | Verdieping | Bewoonbare oppervlakte | Aantal slaapkamers (min) | Oppervlakte terras | E-peil | Prijs (excl. kosten) | Meer info |
|---|---|---|---|---|---|---|---|---|---|
| Lot 1 | Huis | Woning | 0 | 144.00 m² | 3 | 20.00 m² | E30 | € 457 500 | Pand bekijken |
| Lot 2 | Huis | - | 0 | 153.00 m² | 3 | - | E30 | € 467 000 | |
| Lot 3 | Huis | Woning | 0 | 183.00 m² | 3 | 20.00 m² | E30 | Verkocht | - |
| Lot 4 | Huis | Eengezinswoning | 0 | 152.00 m² | 3 | 20.00 m² | E30 | Verkocht | - |
| Lot 5 | Huis | - | 0 | 183.00 m² | 3 | - | E30 | Verkocht | - |
| Lot 6 | Huis | - | 0 | 168.00 m² | 3 | 20.00 m² | E30 | Verkocht | - |
| Lot 7 | Huis | Eengezinswoning | 0 | 168.00 m² | 3 | - | E30 | Verkocht | - |
| Lot 8 | Huis | - | 0 | 154.00 m² | 3 | - | E30 | Verkocht | - |
| Lot 9 | Huis | - | 0 | 168.00 m² | 3 | - | E30 | Verkocht | - |