
Appartement
Gesloten
1 slaapkamer(s)
1 badkamer(s)
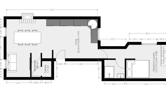
65 m² woonoppervlakte
65 m² grondoppervlakte
D
Pandcode: 1444487
Beschrijving van het pand
Specificaties
Kenmerken
Algemeen
Woonoppervlakte
65.00m²
Grondoppervlakte
65.00m²
Type oppervlakte
Bruto
Omgeving
Aan de rand van water
Omgeving school
Nabij openbaar vervoer
Nabij Park
Nabij treinstation
ERA Comfort Garantie
Basic
Verwarming
Type
Niet bepaald
Radiator
Verwarmingsketel
Verwarmingsmateriaal
Gas
Diversen
Schrijnwerk
PVC
Dubbele beglazing
Isolatie
Dak
Beglazing
Muur
Warm water
Niet bepaald
Gebouw
Verdieping
1
Aantal verdiepingen
2
Allerlei
Parlofoon
Lift aanwezig
Nee
Details
Slaapkamer
Douchekamer
Living
Berging
Toilet
Technische en juridische informatie
Algemeen
Beschermd erfgoed
Nee
Opgenomen in een inventaris van onroerend erfgoed
Nee
Energie en elektriciteit
Elektrische keuring
Keuringsverslag - Conform
Nutsvoorzieningen
Gas
Elektriciteit
Stadswater
Elektriciteit modern
EPC-certificaat
Ja
Energielabel
D
EPB
D
E-peil
D
Certificaatnummer
20251201024926
Berekend specifiek energieverbruik
275
Berekend totaal energieverbruik
17110
Planningsinformatie
Stedenbouwkundige vergunning
Vergunning uitgereikt
Stedenbouwkundige verplichting
Nee
In inventaris van de niet uitgebate bedrijfsruimten
Nee
Voorwerp van rooiplan
Nee
Verkavelingsvergunning uitgereikt
Nee
Voorkoopsrecht ruimtelijke ordening
Nee
Overstromingsgebied
Onroerend goed, niet gelegen in een overstromingsgebied
Renovatieverplichting
Niet van toepassing/Non-applicable
In watergevoelig gebied
Niet van toepassing/Non-applicable


Sluiten















