Beschrijving van het pand

Te koop: lichtrijk en instapklaar duplexappartement in een kleine mede-eigendom aan de Chaussée de Jette in Koekelberg, op korte afstand van het centrum, openbaar vervoer en het park.

Dankzij de ruime indeling van dit mooi gerenoveerde duplexappartement met 2 slaapkamers (+ een dressing) en 2 badkamers is het ideaal voor gezinnen of wie extra ruimte zoekt. De lage gemeenschappelijke lasten maken het bovendien een financieel aantrekkelijke keuze. De ligging in een handelswijk met snelle toegang tot invalswegen zorgt voor een vlotte verbinding naar Brussel en omgeving.

Belangrijkste ruimtes:
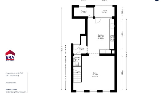
• Woonkamer (20,5 m²) met veel lichtinval
• Keuken (14,4 m²) met voldoende werk- en opbergruimte
• Toilet (1)
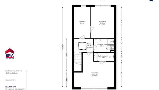
• Slaapkamer (16,8 m²)
• Badkamer (2,6 m²) met douche en lavabo
• Slaapkamer (11,6 m²)
• Dressing/bureel/kleine kinderkamer (9,0 m²)
• Badkamer (4,3 m²) met douche, toilet (2) en dubbele wastafel
• Berging (3,0 m² en 2,7 m²) voor extra opslag
• Kelder voor bijkomende opslagmogelijkheden

Troeven:
• Lichtrijk en instapklaar duplexappartement in kleine mede-eigendom
• 2 slaapkamers en 2 badkamers
• Lage gemeenschappelijke lasten (jaarlijkse bijdrage voor brandverzekering,... beheer door vrijwillige syndicus)

Neem vandaag nog contact op met je ERA-makelaar voor een bezoek.

JOUW DROOMAPPARTEMENT. ZO GEVONDEN!

Specificaties

Kenmerken

Algemeen

Woonoppervlakte
96.00m²
Grondoppervlakte
80.00m²
Type oppervlakte
Netto
Omgeving
Centrum
Handelswijk
Nabij openbaar vervoer
Nabij Park
Invalswegen
Kadastraal inkomen
€616,00

Verwarming

Type
Individuele verwarming
Radiator
Radiatoren
Condensatieketel
Verwarmingsketel
Verwarmingsmateriaal
Gas

Diversen

Schrijnwerk
PVC
Dubbele beglazing
Isolatie
Dak
Beglazing
Detailinfo op aanvraag
Muur
Zie lastenboek
Zie energieprestatiecertificaat
Warm water
Doorstroomsysteem op CV

Gebouw

Bouwjaar
van 1875 tot 1899
Verdieping
2
Aantal verdiepingen
3
Allerlei
Veiligheidsdeur
Bouwmethode: Betonbouw
Lift aanwezig
Nee

Slaapkamer

Berekende oppervlakte
12 m²
Breedte
2.93
Lengte
3.98
1 slaapkamer(s) mogelijk

Dressing

Berekende oppervlakte
9 m²
Breedte
3.98
Lengte
2.5
Beschrijving
bureel of kleine kinderkamer
1 slaapkamer(s) mogelijk

Inkomhal

Berekende oppervlakte
2 m²

Toilet

Berekende oppervlakte
1 m²

Woonkamer

Berekende oppervlakte
21 m²

Keuken

Berekende oppervlakte
14 m²

Berging

Berekende oppervlakte
3 m²

Berging

Berekende oppervlakte
3 m²

Badkamer

Berekende oppervlakte
4 m²
Kamer items
Douche
Toilet
Wastafel dubbel in meubel

Badkamer

Berekende oppervlakte
3 m²
Kamer items
Douche
Wastafel enkel in meubel

Nachthal

Berekende oppervlakte
7 m²

Slaapkamer

Berekende oppervlakte
17 m²
Beschrijving
Met douchekamer
1 slaapkamer(s) mogelijk

Kelder

Beschrijving
Nr 3

Algemeen

Beschermd erfgoed
Nee
Opgenomen in een inventaris van onroerend erfgoed
Nee

Energie en elektriciteit

Elektrische keuring
Keuringsverslag - Conform
Nutsvoorzieningen
Gas
Elektriciteit
Aansluiting riolering
Kabeldistributie
Stadswater
Telefoon
Elektriciteit modern
Internet
EPC-certificaat
Ja
Energielabel
C
Certificaatnummer
20260403-0000749085-01-4
Berekend specifiek energieverbruik
150

Planningsinformatie

Stedenbouwkundige verplichting
Ja
In inventaris van de niet uitgebate bedrijfsruimten
Nee
Voorwerp van rooiplan
Nee
Verkavelingsvergunning uitgereikt
Nee
Voorkoopsrecht ruimtelijke ordening
Nee
Overstromingsgebied
Onroerend goed, niet gelegen in een overstromingsgebied
Renovatieverplichting
Niet van toepassing/Non-applicable
In watergevoelig gebied
Niet van toepassing/Non-applicable
Benoit Pirlotte
Chaussée de Jette 346 BP 3, 1081 Koekelberg