
Huis
Halfopen
3 slaapkamer(s)
2 badkamer(s)
184 m² woonoppervlakte
127 m² grondoppervlakte
D
Pandcode: 1452462
Beschrijving van het pand
Specificaties
Kenmerken
Algemeen
Woonoppervlakte
183.65m²
Grondoppervlakte
127.00m²
Type oppervlakte
Bruto
Oriëntatie perceel
Noord
Oriëntatie voorgevel
Zuid
Omgeving
Stadsrand
Invalswegen
Verwarming
Type
Centrale verwarming
Radiator
Radiatoren
Verwarmingsmateriaal
Gas
Diversen
Schrijnwerk
PVC
Dubbele beglazing
Isolatie
Zie energieprestatiecertificaat
Warm water
Doorstroomsysteem op CV
Gebouw
Bouwjaar
van 1919 tot 1930
Lift aanwezig
Nee
Details
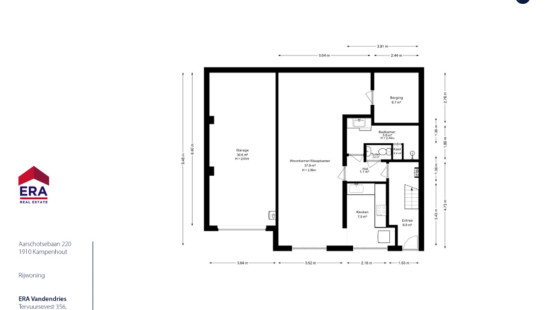
Garage
Woonkamer
Berging
Badkamer
Toilet
Hal
Keuken
Inkomhal
Keuken
Woonkamer
Berging
Toilet
Traphal
Terras
Slaapkamer
Slaapkamer
Badkamer
Nachthal
Slaapkamer
Zolder
Technische en juridische informatie
Algemeen
Beschermd erfgoed
Nee
Opgenomen in een inventaris van onroerend erfgoed
Nee
Energie en elektriciteit
Elektrische keuring
Geen keuringsverslag
Nutsvoorzieningen
Gas
Elektriciteit
Aansluiting riolering
Stadswater
Internet
EPC-certificaat
Ja
Energielabel
D
Certificaatnummer
20250415-0003568464-RES-1
Berekend specifiek energieverbruik
348
Planningsinformatie
Stedenbouwkundige vergunning
Vergunning uitgereikt
Stedenbouwkundige verplichting
Ja
In inventaris van de niet uitgebate bedrijfsruimten
Nee
Voorwerp van rooiplan
Nee
Herstelmaatregel
Geen rechterlijke herstelmaatregel of bestuurlijke maatregel opgelegd
Verkavelingsvergunning uitgereikt
Nee
Voorkoopsrecht ruimtelijke ordening
Nee
Stedelijke bestemming
Woongebied met landelijk karakter
Overstromingsgebied
Onroerend goed, niet gelegen in een overstromingsgebied
P(erceel) score
klasse A
G(ebouw) score
klasse A
Renovatieverplichting
Niet van toepassing/Non-applicable
In watergevoelig gebied
Niet van toepassing/Non-applicable
Sluiten





























