
Opbrengsteigendom
Gesloten
2 slaapkamer(s)
1 badkamer(s)
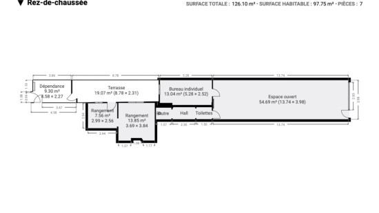
92 m² woonoppervlakte
175 m² grondoppervlakte
Pandcode: 1414985
Beschrijving van het pand
Specificaties
Kenmerken
Algemeen
Woonoppervlakte
92.00m²
Grondoppervlakte
175.00m²
Type oppervlakte
Bruto
Omgeving
Centrum
Omgeving school
Nabij openbaar vervoer
Kadastraal inkomen
€1541,00
Verwarming
Type
Individuele verwarming
Radiator
Radiatoren
Verwarmingsmateriaal
Gas
Diversen
Schrijnwerk
PVC
Dubbele beglazing
Isolatie
Detailinfo op aanvraag
Warm water
Boiler gas
Gebouw
Lift aanwezig
Nee
Details
Slaapkamer
Slaapkamer
Living
Keuken
Badkamer
Hal
Handelsruimte
Bureel
Achtersas
Hal
Toilet
Achtersas
Terras
Berging
Garage
Technische en juridische informatie
Algemeen
Beschermd erfgoed
Nee
Opgenomen in een inventaris van onroerend erfgoed
Nee
Energie en elektriciteit
Elektrische keuring
Keuringsverslag - Conform
Nutsvoorzieningen
Gas
Elektriciteit
Stadswater
EPC-certificaat
Ja
Energielabel
D
Certificaatnummer
20251013001057
Berekend specifiek energieverbruik
268
Berekend totaal energieverbruik
28113
Planningsinformatie
Stedenbouwkundige vergunning
Geen vergunning uitgereikt
Stedenbouwkundige verplichting
Nee
In inventaris van de niet uitgebate bedrijfsruimten
Nee
Voorwerp van rooiplan
Nee
Verkavelingsvergunning uitgereikt
Nee
Voorkoopsrecht ruimtelijke ordening
Nee
Overstromingsgebied
Onroerend goed, niet gelegen in een overstromingsgebied
Renovatieverplichting
Niet van toepassing/Non-applicable
In watergevoelig gebied
Niet van toepassing/Non-applicable
Sluiten


















