
Woning met 3 slaapkamers te koop in Comblain-au-Pont
€ 290 000
Video afspelen
Open Huizen Dag op 14/03 van 9:30 tot 10:30




+13 foto's weergeven













Huis
Halfopen
3 slaapkamer(s)
2 badkamer(s)
197 m² woonoppervlakte
198 m² grondoppervlakte
F
Pandcode: 1455921
Beschrijving van het pand
Specificaties
Kenmerken
Algemeen
Woonoppervlakte
197.00m²
Grondoppervlakte
198.00m²
Type oppervlakte
Bruto
Oriëntatie perceel
Zuid-Oost
Oriëntatie voorgevel
Noord-West
Omgeving
Residentieel
Omgeving school
Nabij openbaar vervoer
Kadastraal inkomen
€555,00
Verwarming
Type
Centrale verwarming
Radiator
Radiatoren
Verwarmingsmateriaal
Stookolie
Diversen
Schrijnwerk
PVC
Dubbele beglazing
Isolatie
Lijstwerk
Zie energieprestatiecertificaat
Warm water
Geiser op CV
Gebouw
Bouwjaar
van 1900 tot 1918
Lift aanwezig
Nee
Details
Stadstuin
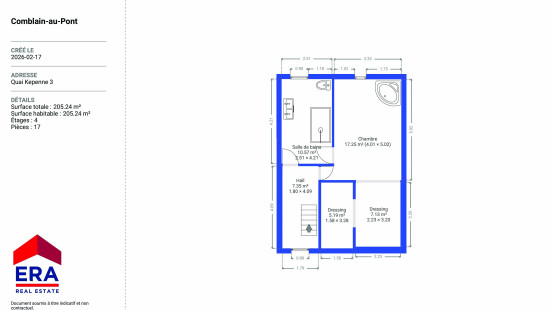
Hal
Kelder
Kelder
Kelder
Inkomhal
Living
Keuken
Bijkeuken
Wasplaats
Hal
Badkamer
Slaapkamer
Slaapkamer
Nachthal
Badkamer
Dressing
Dressing
Slaapkamer
Technische en juridische informatie
Algemeen
Beschermd erfgoed
Nee
Opgenomen in een inventaris van onroerend erfgoed
Nee
Energie en elektriciteit
Nutsvoorzieningen
Elektriciteit
Aansluiting riolering
Kabeldistributie
Stadswater
Telefoon
Internet
EPC-certificaat
Ja
Energielabel
F
E-peil
F
Certificaatnummer
2026204006204
Berekend specifiek energieverbruik
487
CO2-uitstoot
120.00
Berekend totaal energieverbruik
96180
Planningsinformatie
Stedenbouwkundige vergunning
Vergunning uitgereikt
Stedenbouwkundige verplichting
Nee
In inventaris van de niet uitgebate bedrijfsruimten
Nee
Voorwerp van rooiplan
Nee
Herstelmaatregel
Geen rechterlijke herstelmaatregel of bestuurlijke maatregel opgelegd
Verkavelingsvergunning uitgereikt
Nee
Voorkoopsrecht ruimtelijke ordening
Nee
Stedelijke bestemming
La zone d'habitat
Renovatieverplichting
Niet van toepassing/Non-applicable
In watergevoelig gebied
Niet van toepassing/Non-applicable

Bezoek tijdens de Open Huizen Dag
Bezoek de ERA Open Huizen Dag en geniet van onze ‘fast lane ervaring’! Inschrijven is niet verplicht, maar zo kunnen we je wel beter informeren voor- en tijdens je bezoek.
Sluiten
