
Huis
Gesloten
4 slaapkamer(s)
1 badkamer(s)
136 m² woonoppervlakte
356 m² grondoppervlakte
D
Pandcode: 1472170
Beschrijving van het pand
Specificaties
Kenmerken
Algemeen
Woonoppervlakte
136.00m²
Grondoppervlakte
356.00m²
Exploiteerbare oppervlakte
201.00m²
Type oppervlakte
Netto
Oriëntatie perceel
Noord
Omgeving
Omgeving school
Nabij openbaar vervoer
Nabij Park
Nabij treinstation
Kadastraal inkomen
€805,00
Verwarming
Type
Centrale verwarming
Radiator
Radiatoren met thermostatische kraan
Pelletkachel
Verwarmingsmateriaal
Stookolie
Diversen
Schrijnwerk
Aluminium
Enkele beglazing
Dubbele beglazing
Isolatie
Detailinfo op aanvraag
Warm water
Boiler Elektrisch
Gebouw
Lift aanwezig
Nee
Details
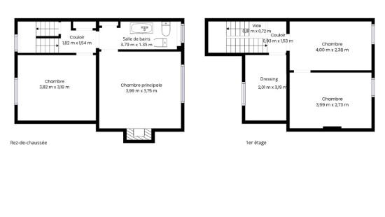
Slaapkamer
Slaapkamer
Slaapkamer
Slaapkamer
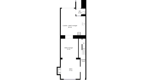
Inkomhal
Woonkamer
Eetkamer
Keuken
Toilet
Toilet
Terras
Nachthal
Badkamer
Nachthal
Dressing
Kelder
Technische en juridische informatie
Algemeen
Beschermd erfgoed
Nee
Opgenomen in een inventaris van onroerend erfgoed
Nee
Energie en elektriciteit
Elektrische keuring
Keuringsverslag in aanvraag
Nutsvoorzieningen
Elektriciteit
Aardgas aanwezig in de straat
Aansluiting riolering
Kabeldistributie
Stadswater
Telefoon
Internet
EPC-certificaat
Ja
Energielabel
D
E-peil
D
Certificaatnummer
20260316028718
Berekend specifiek energieverbruik
332
Berekend totaal energieverbruik
55799
Planningsinformatie
Stedenbouwkundige vergunning
Vergunning uitgereikt
Stedenbouwkundige verplichting
Nee
In inventaris van de niet uitgebate bedrijfsruimten
Nee
Voorwerp van rooiplan
Nee
Verkavelingsvergunning uitgereikt
Nee
Voorkoopsrecht ruimtelijke ordening
Nee
Stedelijke bestemming
La zone d'habitat
Overstromingsgebied
Onroerend goed, niet gelegen in een overstromingsgebied
Renovatieverplichting
Niet van toepassing/Non-applicable
In watergevoelig gebied
Niet van toepassing/Non-applicable
Sluiten






























