
Maison 3ch centre de Marche-en-Famenne
Sold




Show +9 photo(s)









House
Semi-detached
3 bedrooms
2 bathroom(s)
180 m² habitable sp.
165 m² ground sp.
D
Property code: 1414092
Specifications
Characteristics
General
Habitable area (m²)
180.00m²
Soil area (m²)
165.00m²
Surface type
Brut
Plot orientation
West
Orientation frontage
East
Surroundings
Centre
Social environment
Commercial district
Near school
Close to public transport
Near railway station
Access roads
Hospital nearby
Taxable income
€914,00
Heating
Heating type
Central heating
Heating elements
Radiators with thermostatic valve
Central heating boiler, furnace
Heating material
Fuel oil
Miscellaneous
Joinery
PVC
Wood
Double glazing
Isolation
Mouldings
See energy performance certificate
Warm water
Water heater on central heating
Building
Year built
1955
Miscellaneous
Roller shutters
Lift present
No
Details
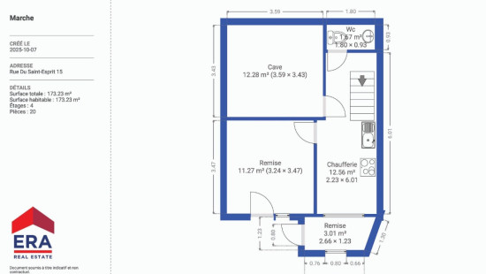
Basement
Toilet
Storage
Boiler room
Storage
Living room, lounge
Entrance hall
Dining room
Kitchen
Veranda
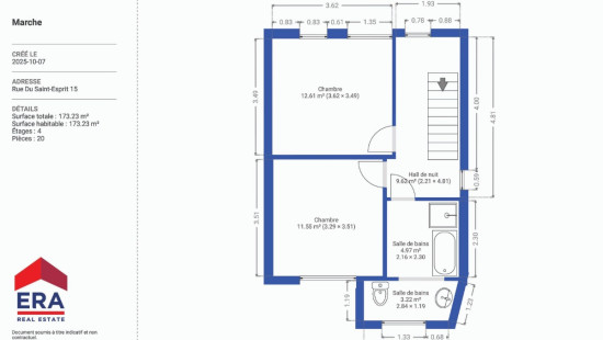
Bedroom
Night hall
Bedroom
Bathroom
Bathroom
Attic
Attic
Bedroom
Night hall
Attic
Garden
Technical and legal info
General
Protected heritage
No
Recorded inventory of immovable heritage
No
Energy & electricity
Electrical inspection
Inspection report pending
Utilities
Electricity
Sewer system connection
Cable distribution
City water
Telephone
Internet
Energy performance certificate
Yes
Energy label
D
E-level
D
Certificate number
20251006024231
Calculated specific energy consumption
329
CO2 emission
81.00
Calculated total energy consumption
59258
Planning information
Urban Planning Permit
Permit issued
Urban Planning Obligation
No
In Inventory of Unexploited Business Premises
No
Subject of a Redesignation Plan
No
Summons
Geen rechterlijke herstelmaatregel of bestuurlijke maatregel opgelegd
Subdivision Permit Issued
No
Pre-emptive Right to Spatial Planning
No
Urban destination
La zone d'habitat
Flood Area
Property not located in a flood plain/area
Renovation Obligation
Niet van toepassing/Non-applicable
In water sensetive area
Niet van toepassing/Non-applicable
Close
