
Te koop: woning met potentieel op toplocatie in Maldegem.
€ 230 000




Show +18 photo(s)


















House
Semi-detached
2 bedrooms
1 bathroom(s)
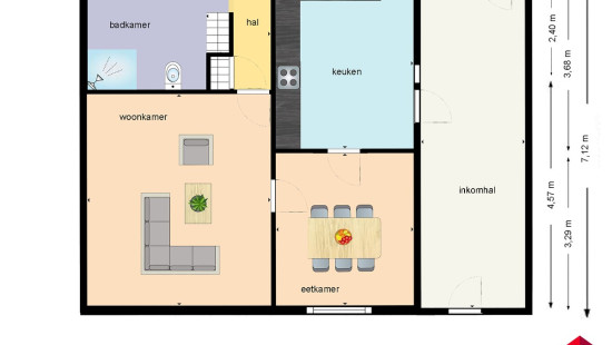
152 m² habitable sp.
494 m² ground sp.
E
Property code: 1425514
Specifications
Characteristics
General
Habitable area (m²)
152.00m²
Soil area (m²)
494.00m²
Built area (m²)
167.00m²
Width surface (m)
10.00m
Surface type
Brut
Plot orientation
East
Surroundings
Centre
Social environment
Town centre
Park
Near school
Close to public transport
Access roads
Taxable income
€306,00
Heating
Heating type
Individual heating
Heating material
Gas
Miscellaneous
Joinery
PVC
Super-insulating high-efficiency glass
Isolation
Glazing
Warm water
Electric boiler
Building
Year built
from 1900 to 1918
Amount of floors
1
Lift present
No
Details
Living room, lounge
Bedroom
Bedroom
Basement
Garage
Entrance hall
Kitchen
Bathroom
Garden
Technical and legal info
General
Protected heritage
No
Recorded inventory of immovable heritage
No
Energy & electricity
Electrical inspection
No inspection report
Utilities
Gas
Electricity
Natural gas present in the street
City water
Energy performance certificate
Yes
Energy label
E
Certificate number
20251017-0003712431-RES-1
Calculated specific energy consumption
421
Planning information
Urban Planning Permit
Property built before 1962
Urban Planning Obligation
Yes
In Inventory of Unexploited Business Premises
No
Subject of a Redesignation Plan
No
Subdivision Permit Issued
No
Pre-emptive Right to Spatial Planning
No
Urban destination
Residential area
Flood Area
Property not located in a flood plain/area
P(arcel) Score
klasse A
G(building) Score
klasse A
Renovation Obligation
Van toepassing/Applicable
In water sensetive area
Niet van toepassing/Non-applicable
Close
