
House
Semi-detached
3 bedrooms
2 bathroom(s)
183 m² habitable sp.
322 m² ground sp.
A
Property code: 1465003
Specifications
Characteristics
General
Habitable area (m²)
183.00m²
Soil area (m²)
322.00m²
Built area (m²)
183.00m²
Surface type
Brut
Surroundings
Green surroundings
Heating
Heating type
Individual heating
Heating elements
Underfloor heating
Heating material
Heat pump (water)
Miscellaneous
Joinery
PVC
Double glazing
Isolation
Detailed information on request
See specifications
Warm water
Boiler on central heating
Building
Year built
2026
Lift present
No
Details
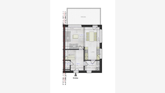
Living room, lounge
Laundry area
Entrance hall
Toilet
Bedroom
Bedroom
Bedroom
Night hall
Bathroom
Shower room
Toilet
Attic
Terrace
Garden
Technical and legal info
General
Protected heritage
No
Recorded inventory of immovable heritage
No
Energy & electricity
Utilities
Electricity
Sewer system connection
Cable distribution
City water
Telephone
Electricity modern
Energy label
A
E-level
A
Planning information
Urban Planning Permit
Permit issued
Urban Planning Obligation
No
In Inventory of Unexploited Business Premises
No
Subject of a Redesignation Plan
No
Summons
Geen rechterlijke herstelmaatregel of bestuurlijke maatregel opgelegd
Subdivision Permit Issued
No
Pre-emptive Right to Spatial Planning
No
Flood Area
Property not located in a flood plain/area
Renovation Obligation
Niet van toepassing/Non-applicable
In water sensetive area
Niet van toepassing/Non-applicable
Close

| Object number | E-level | Construction type | Habitable surface | Amount of bedrooms | Plot area | Terrace surface | Type | Price (excl. costs) | More info |
|---|---|---|---|---|---|---|---|---|---|
| LOT 20 | A | Semi-detached | 187.00 m² | 3 | 600.00 m² | 10.00 m² | House | € 446 710 | View property |
| LOT 21 | A | Semi-detached | 192.00 m² | 3 | 526.00 m² | - | House | € 446 760 | View property |
| LOT 22 | A | Semi-detached | 225.00 m² | 4 | 476.00 m² | - | House | € 448 770 | View property |
| LOT23 | A | Semi-detached | 152.00 m² | 3 | 409.00 m² | - | House | € 397 585 | View property |
| LOT26 | A | Detached / open construction | 165.00 m² | 3 | 378.00 m² | - | House | € 406 635 | View property |
| LOT30 | A | 2 facades / enclosed building | 190.00 m² | 3 | 224.00 m² | - | House | € 394 610 | View property |
| LOT 61 | A | Semi-detached | 220.00 m² | 3 | 503.00 m² | - | House | € 449 770 | View property |
| LOT62 | A | 2 facades / enclosed building | 194.00 m² | 3 | 274.00 m² | - | House | € 397 635 | View property |
| LOT64 | A | Semi-detached | 221.00 m² | 3 | 457.00 m² | - | House | € 442 760 | View property |
| LOT 53 | - | Semi-detached | 287.00 m² | 4 | 410.00 m² | - | House | € 456 210 | View property |
| LOT 55 | - | Semi-detached | 211.00 m² | 3 | 375.00 m² | - | House | € 406 210 | View property |
| LOT 56 | - | Semi-detached | 183.00 m² | 3 | 322.00 m² | - | House | € 391 210 | |
| LOT 57 | - | 2 facades / enclosed building | 177.00 m² | 3 | 211.00 m² | - | House | € 381 210 | View property |
| LOT 58 | - | 2 facades / enclosed building | 177.00 m² | 3 | 206.00 m² | - | House | € 381 210 | View property |
| LOT 59 | - | Semi-detached | 183.00 m² | 3 | 456.00 m² | - | House | € 401 210 | View property |
| LOT 34 | - | Semi-detached | 276.00 m² | 3 | 525.00 m² | - | House | € 459 210 | - |
| LOT 35 | - | Semi-detached | 277.00 m² | 4 | 556.00 m² | - | House | € 459 210 | View property |
| LOT 36 | - | Semi-detached | 272.00 m² | 3 | 461.00 m² | - | House | € 445 160 | View property |
| LOT37 | - | Semi-detached | 210.00 m² | 3 | 662.00 m² | - | House | € 426 210 | View property |
| LOT 38 | - | Detached / open construction | 293.00 m² | 4 | 766.00 m² | - | House | € 496 210 | View property |
| LOT 39 | - | Semi-detached | 210.00 m² | 3 | 914.00 m² | - | House | € 441 210 | View property |
| LOT 40 | - | Semi-detached | 272.00 m² | 3 | 699.00 m² | - | House | € 466 210 | View property |
| LOT 46 | - | Semi-detached | 252.00 m² | 3 | 835.00 m² | - | House | € 516 210 | View property |
| LOT 45 | - | 2 facades / enclosed building | 246.00 m² | 3 | 334.00 m² | - | House | € 471 210 | View property |
| LOT 25 | A | Semi-detached | 136.00 m² | 4 | 491.00 m² | - | House | Sold | - |
| LOT 27 | A | Semi-detached | 126.00 m² | 3 | 739.00 m² | - | House | Sold | - |
| LOT28 | A | 2 facades / enclosed building | 122.00 m² | 3 | 252.00 m² | - | House | Sold | - |
| LOT29 | A | 2 facades / enclosed building | 124.00 m² | 3 | 275.00 m² | - | House | Sold | - |
| LOT63 | A | 2 facades / enclosed building | 178.00 m² | 3 | 305.00 m² | - | House | Sold | - |
| LOT 67 | A | Semi-detached | 182.00 m² | 4 | 401.00 m² | - | House | Sold | - |
| LOT 68 | A | Semi-detached | 174.00 m² | 4 | 574.00 m² | - | House | Sold | - |
| LOT 25 | A | Semi-detached | 186.00 m² | 4 | 491.00 m² | - | House | Sold | - |






















