
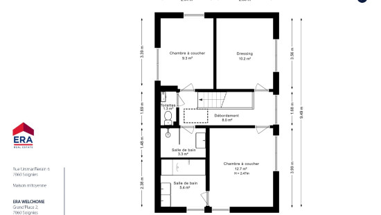
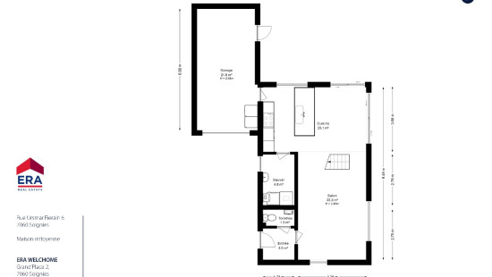
Maison 3 chambres + garage
Vanaf € 375 000
Video afspelen



+20 foto's weergeven

Bezoek tijdens de Open Huizen Dag
Bezoek de ERA Open Huizen Dag en geniet van onze ‘fast lane ervaring’! Inschrijven is niet verplicht, maar zo kunnen we je wel beter informeren voor- en tijdens je bezoek.
Sluiten





















