
Lichtrijk appartement in Wemmel
€ 285 000




+11 foto's weergeven











Appartement
Gesloten
2 slaapkamer(s)
1 badkamer(s)
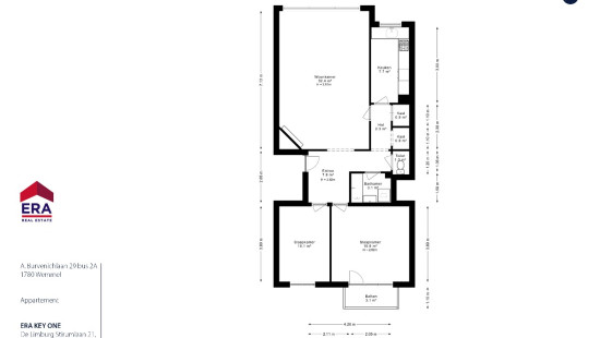
93 m² woonoppervlakte
376 m² grondoppervlakte
B
Pandcode: 1481665
Beschrijving van het pand
Specificaties
Kenmerken
Algemeen
Woonoppervlakte
93.00m²
Grondoppervlakte
376.00m²
Type oppervlakte
Bruto
Oriëntatie perceel
Noord-West
Omgeving
Centrum
Stadsrand
Nabij openbaar vervoer
Invalswegen
Nabij ziekenhuis
Kadastraal inkomen
€1053,00
Verwarming
Type
Collectieve verwarming / Gemeenschappelijke verwarming
Radiator
Radiatoren met thermostatische kraan
Radiatoren met digitale calorimeters
Verwarmingsmateriaal
Gas
Diversen
Schrijnwerk
Dubbele beglazing
Isolatie
Beglazing
Detailinfo op aanvraag
Zie energieprestatiecertificaat
Warm water
Doorstroomsysteem op CV
Gebouw
Bouwjaar
1962
Verdieping
2
Aantal verdiepingen
4
Allerlei
Veiligheidsdeur
Bouwmethode: Betonbouw
Lift aanwezig
Ja
Details
Kelder
Woonkamer
Keuken
Inkomhal
Berging
Toilet
Badkamer
Slaapkamer
Terras
Slaapkamer
Technische en juridische informatie
Algemeen
Beschermd erfgoed
Nee
Opgenomen in een inventaris van onroerend erfgoed
Nee
Energie en elektriciteit
Elektrische keuring
Keuringsverslag - Conform
Nutsvoorzieningen
Gas
Elektriciteit
Aansluiting riolering
Kabeldistributie
Stadswater
Telefoon
Elektriciteit modern
Internet
EPC-certificaat
Ja
Energielabel
B
Certificaatnummer
20260408-0003842833-RES-1
Berekend specifiek energieverbruik
164
Planningsinformatie
Stedenbouwkundige vergunning
Vergunning uitgereikt
Stedenbouwkundige verplichting
Ja
In inventaris van de niet uitgebate bedrijfsruimten
Nee
Voorwerp van rooiplan
Nee
Herstelmaatregel
Geen rechterlijke herstelmaatregel of bestuurlijke maatregel opgelegd
Verkavelingsvergunning uitgereikt
Nee
Voorkoopsrecht ruimtelijke ordening
Nee
Overstromingsgebied
Onroerend goed, niet gelegen in een overstromingsgebied
P(erceel) score
klasse A
G(ebouw) score
klasse A
Renovatieverplichting
Niet van toepassing/Non-applicable
In watergevoelig gebied
Niet van toepassing/Non-applicable
Sluiten

Downloads
- Maatregelenregister voor overdracht.pdf
- Kadaster gebouw .pdf
- 5. OVAM.pdf
- 8. RechtVanVoorkoop-O2026-0328736-24_3_2026.pdf
- 10. Gewestinfo-O2026-0328735-24_3_2026.pdf
- 7. EPC B.pdf
- 11. Herstelvorderingen-O2026-0328739-24_3_2026.pdf
- 13. Mobiscore-O2026-0328746-24_3_2026.pdf
- 14. OmgevingsRapport-O2026-0328747-24_3_2026.pdf
- 6. Asbest NEG.pdf
- 16. OnroerendErfgoed-O2026-0328737-24_3_2026.pdf
- 15. OngeschiktOnbewoonbaar-O2026-0328740-24_3_2026.pdf