
Instapklaar 4 slaapkamerwoning in centrum Vilvoorde
€ 259 000




+21 foto's weergeven





















Huis
Gesloten
4 slaapkamers (5 mogelijk)
1 badkamer(s)
116 m² woonoppervlakte
50 m² grondoppervlakte
D
Pandcode: 1455555
Beschrijving van het pand
Specificaties
Kenmerken
Algemeen
Woonoppervlakte
116.00m²
Grondoppervlakte
50.00m²
Type oppervlakte
Bruto
Oriëntatie perceel
Noord-Oost
Omgeving
Centrum
Omgeving school
Nabij openbaar vervoer
Nabij Park
Nabij treinstation
Invalswegen
Nabij ziekenhuis
Kadastraal inkomen
€421,00
Verwarming
Type
Centrale verwarming
Individuele verwarming
Radiator
Radiatoren
Condensatieketel
Verwarmingsmateriaal
Gas
Diversen
Schrijnwerk
Aluminium
PVC
Hout
Enkele beglazing
Dubbele beglazing
Superisolerend hoogrendementsglas
Isolatie
Vloerplaat
Beglazing
Warm water
Boiler op CV
Gebouw
Bouwjaar
van 1900 tot 1918
Aantal verdiepingen
2
Allerlei
Rolluiken
Parlofoon
Lift aanwezig
Nee
Details
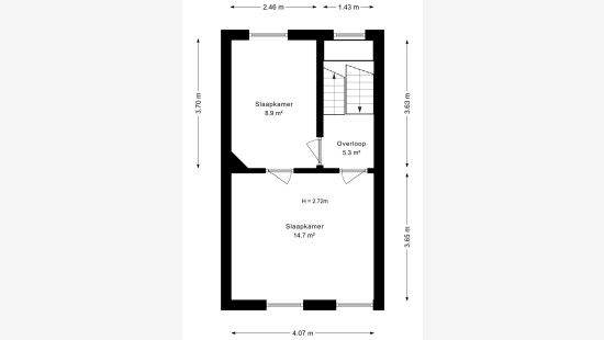
Inkomhal
Woonkamer
Keuken
Badkamer
Nachthal
Slaapkamer
Slaapkamer
Nachthal
Slaapkamer
Slaapkamer
Zolder
Kelder
Technische en juridische informatie
Algemeen
Beschermd erfgoed
Nee
Opgenomen in een inventaris van onroerend erfgoed
Ja
Energie en elektriciteit
Nutsvoorzieningen
Gas
Elektriciteit
Aansluiting riolering
Stadswater
EPC-certificaat
Ja
Energielabel
D
Certificaatnummer
20251022-0003712219-RES-2
Berekend specifiek energieverbruik
336
Planningsinformatie
Stedenbouwkundige vergunning
Woning gebouwd voor 1962
Stedenbouwkundige verplichting
Nee
In inventaris van de niet uitgebate bedrijfsruimten
Nee
Voorwerp van rooiplan
Nee
Herstelmaatregel
Geen rechterlijke herstelmaatregel of bestuurlijke maatregel opgelegd
Verkavelingsvergunning uitgereikt
Nee
Voorkoopsrecht ruimtelijke ordening
Ja
Stedelijke bestemming
Woongebied
Overstromingsgebied
Onroerend goed, niet gelegen in een overstromingsgebied
P(erceel) score
klasse A
G(ebouw) score
klasse A
Renovatieverplichting
Niet van toepassing/Non-applicable
In watergevoelig gebied
Niet van toepassing/Non-applicable
Sluiten
