Beschrijving van het pand

Charmante woning is gelegen in het centrum van Tongeren, aan het toeristische "Begijnhof". De woning is een vastgesteld bouwkundig erfgoed, doch heeft dit beperkte juridische invloed daar de woning in de jaren 90 een grote renovatie heeft ondergaan waarbij de authentieke elementen zo goed als mogelijk bewaard zijn gebleven. De woning bevindt zich op wandelafstand van scholen, winkels, het openbaar vervoer en het park "De Motten"

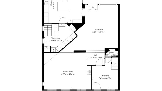
INDELING
Gelijkvloers

  • Ruime inkomhal met apart toilet
  • Open leef- en eetruimte met houtkachel, handgemaakte radiatoren en natuurlijk lichtinval 
  • Keuken voorzien van een keramische kookplaat, dubbele spoelbak, vaatwasser...
  • Berging met spoelbak, aansluitingen voor wasmachine en droogkast en kasten

Eerste verdieping

  • Nachthal
  • Bureel (hobbyruimte, extra slaapkamer)
  • Twee slaapkamers (1 met airco)
  • Badkamer 1 (dubbele wastafel en bad)

Tweede verdieping

  • Leefruimte
  • Twee slaapkamers
  • Badkamer 2 (enkele wastafel, douche en toilet)

Kelder
De woning beschikt over twee authentieke kelders, waarvan één dient als technische ruimte terwijl de andere kan dienen als wijnkelder. 

Exterieur

  • Ruim terras met wateraansluitingen (regenwaterput)
  • Carport voor 3 wagens
  • Ruime oprit (extra parking) toegangkelijk via sectionale poort

TROEVEN

  • EPC D, dus géén renovatieverplichting
  • Prachtige ligging aan het Begijnhof
  • Stadswoning met terras, parking en carport

Specificaties

Kenmerken

Algemeen

Woonoppervlakte
294.00m²
Grondoppervlakte
419.00m²
Type oppervlakte
Bruto
Oriëntatie perceel
N
Omgeving
Centrum
Omgeving school
Nabij openbaar vervoer
Nabij Park
Nabij treinstation
Nabij ziekenhuis
Kadastraal inkomen
€1712,00
ERA Comfort Garantie
Basic

Verwarming

Type
Centrale verwarming
Radiator
Radiatoren
Verwarmingsmateriaal
Gas

Diversen

Schrijnwerk
Hout
Dubbele beglazing
Isolatie
Detailinfo op aanvraag
Dakisolatie
Warm water
Boiler op CV

Gebouw

Bouwjaar
van 1875 tot 1899
Lift aanwezig
Nee

Kelder

Kelder

Kamer items
Wijnkelder

Inkomhal

Toilet

Kamer items
Met handenwasser

Woonkamer

Kamer items
Kachel

Eetkamer

Keuken

Berging

Kamer items
Spoelbak enkel
Aansluiting droogkast
Aansluiting wasmachine
Ingemaakte kasten

Nachthal

Bureel

Kamer items
Ingemaakte kasten
1 slaapkamer(s) mogelijk

Slaapkamer

1 slaapkamer(s) mogelijk

Slaapkamer

1 slaapkamer(s) mogelijk

Badkamer

Kamer items
Ligbad
Toilet
Wastafel dubbel in meubel

Polyvalente ruimte

Nachthal

Slaapkamer

1 slaapkamer(s) mogelijk

Slaapkamer

1 slaapkamer(s) mogelijk

Badkamer

Kamer items
Douche
Toilet
Wastafel enkel

Tuin

Berekende oppervlakte
200 m²
Beschrijving
Sectionale poort

Carport

Carport

Carport

Algemeen

Beschermd erfgoed
Nee
Opgenomen in een inventaris van onroerend erfgoed
Ja

Energie en elektriciteit

Elektrische keuring
Keuringsverslag - Niet conform
Nutsvoorzieningen
Gas
Elektriciteit
Aansluiting riolering
Internet
Energielabel
D
Certificaatnummer
20250512-0003598720-RES-4
Berekend specifiek energieverbruik
358

Planningsinformatie

Stedenbouwkundige vergunning
Woning gebouwd voor 1962
Stedenbouwkundige verplichting
Ja
In inventaris van de niet uitgebate bedrijfsruimten
Nee
Voorwerp van rooiplan
Nee
Herstelmaatregel
Geen rechterlijke herstelmaatregel of bestuurlijke maatregel opgelegd
Verkavelingsvergunning uitgereikt
Nee
Voorkoopsrecht ruimtelijke ordening
Nee
Stedelijke bestemming
Woongebied
Overstromingsgebied
Onroerend goed, niet gelegen in een overstromingsgebied
P(erceel) score
klasse B
G(ebouw) score
klasse B
Renovatieverplichting
Niet van toepassing/Non-applicable
In watergevoelig gebied
Niet van toepassing/Non-applicable
Sluiten
Dries Vanschoonbeek
Sint-Catharinastraat 30 , 3700 Tongeren