Beschrijving van het pand

ERA B-LUX biedt u deze halfopen woning aan, gelegen in het dorp Sugny, in de gemeente Vresse-sur-Semois, in een rustige en toeristische omgeving.
Sugny staat bekend om zijn natuurlijke omgeving, zijn talrijke wandelroutes en zijn rustige sfeer, ideaal voor liefhebbers van natuur en landelijke projecten.
De woning bestaat uit een hoofdwoning met een gedeelte dat vroeger als gîte werd uitgebaat, wat reeds een goede basis biedt voor een toeristische activiteit.
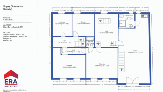
Het geheel beschikt over ruime volumes met een groot ontwikkelingspotentieel, met de mogelijkheid om tot 7 slaapkamers te creëren volgens uw project.
De indeling laat ook toe om twee afzonderlijke wooneenheden te realiseren, ideaal voor een gezinsproject gecombineerd met een gîte-activiteit.
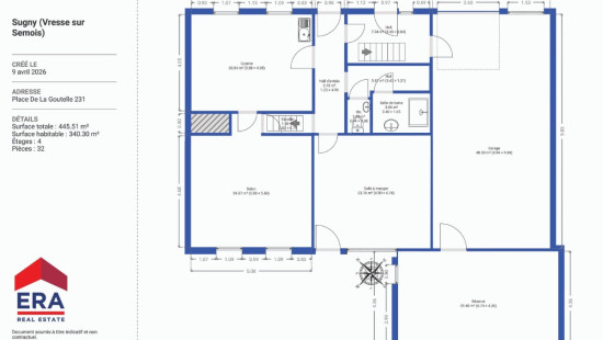
Een grote garage (voormalige smidse) maakt het geheel compleet en biedt extra mogelijkheden (atelier, opslag of verdere inrichting).
Dit pand vormt een mooie opportuniteit voor een woon- of investeringsproject in een toeristisch aantrekkelijke regio.
Geïnteresseerd? Contacteer ERA B-LUX op +32 61 21 07 50 voor meer informatie of om een bezoek te plannen.

Specificaties

Kenmerken

Algemeen

Woonoppervlakte
458.00m²
Grondoppervlakte
461.00m²
Type oppervlakte
Bruto
Oriëntatie perceel
West
Oriëntatie voorgevel
West
Omgeving
Toeristische zone
Kadastraal inkomen
€485,00

Verwarming

Type
Centrale verwarming
Radiator
Radiatoren
Verwarmingsketel
Verwarmingsmateriaal
Stookolie

Diversen

Schrijnwerk
Hout
Enkele beglazing
Isolatie
Detailinfo op aanvraag
Dakisolatie
Warm water
Boiler op CV

Gebouw

Bouwjaar
van 1919 tot 1930
Allerlei
Rolluiken
Lift aanwezig
Nee

Slaapkamer

Berekende oppervlakte
10 m²
1 slaapkamer(s) mogelijk

Slaapkamer

Berekende oppervlakte
12 m²
1 slaapkamer(s) mogelijk

Slaapkamer

Berekende oppervlakte
19 m²
1 slaapkamer(s) mogelijk

Slaapkamer

Berekende oppervlakte
23 m²
1 slaapkamer(s) mogelijk

Slaapkamer

Berekende oppervlakte
11 m²
1 slaapkamer(s) mogelijk

Slaapkamer

Berekende oppervlakte
10 m²
1 slaapkamer(s) mogelijk

Slaapkamer

Berekende oppervlakte
12 m²
1 slaapkamer(s) mogelijk

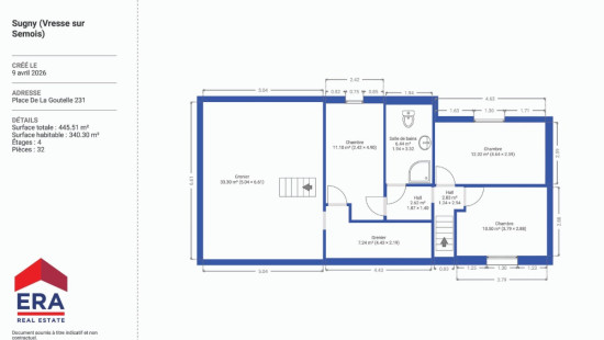
Kelder

Berekende oppervlakte
16 m²

Hal

Berekende oppervlakte
11 m²

Hal

Berekende oppervlakte
16 m²

Keuken

Berekende oppervlakte
21 m²

Woonkamer

Berekende oppervlakte
25 m²

Eetkamer

Berekende oppervlakte
23 m²

Inkomhal

Hal

Berekende oppervlakte
7 m²

Garage

Berekende oppervlakte
48 m²

Badkamer

Toilet

Berekende oppervlakte
136 m²

Badkamer

Berekende oppervlakte
2 m²

Badkamer

Berekende oppervlakte
5 m²

Living

Berekende oppervlakte
45 m²

Zolder

Berekende oppervlakte
33 m²

Zolder

Berekende oppervlakte
7 m²

Tuin

Berekende oppervlakte
461 m²

Algemeen

Beschermd erfgoed
Nee
Opgenomen in een inventaris van onroerend erfgoed
Nee

Energie en elektriciteit

Elektrische keuring
Keuringsverslag - Niet conform
Nutsvoorzieningen
Elektriciteit
Aansluiting riolering
Stadswater
EPC-certificaat
Ja
Energielabel
C
EPB
C
E-peil
C
Certificaatnummer
20260407038611
Berekend specifiek energieverbruik
248
CO2-uitstoot
61.00
Berekend totaal energieverbruik
113670

Planningsinformatie

Stedenbouwkundige vergunning
Woning gebouwd voor 1962
Stedenbouwkundige verplichting
Ja
In inventaris van de niet uitgebate bedrijfsruimten
Nee
Voorwerp van rooiplan
Nee
Herstelmaatregel
Geen rechterlijke herstelmaatregel of bestuurlijke maatregel opgelegd
Verkavelingsvergunning uitgereikt
Nee
Voorkoopsrecht ruimtelijke ordening
Nee
Stedelijke bestemming
La zone d'habitat
Overstromingsgebied
Niet van toepassing
Renovatieverplichting
Niet van toepassing/Non-applicable
In watergevoelig gebied
Niet van toepassing/Non-applicable
Sluiten
Place de la Goutelle 231 , 5550 Sugny (Vresse-sur-Semois)