Specificaties

Kenmerken

Algemeen

Woonoppervlakte
90.00m²
Grondoppervlakte
5.00m²
Type oppervlakte
Bruto
Omgeving
Centrum

Verwarming

Type
Centrale verwarming
Radiator
Verwarmingsketel
Verwarmingsmateriaal
Gas

Diversen

Schrijnwerk
Aluminium
Dubbele beglazing
Isolatie
Niet bepaald
Warm water
Hoogrendementsketel

Gebouw

Bouwjaar
van 1919 tot 1930
Aantal verdiepingen
3
Allerlei
Rolluiken
Lift aanwezig
Nee

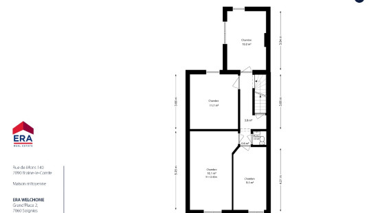
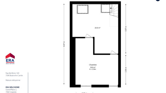
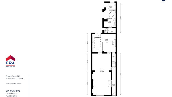
Slaapkamer

Berekende oppervlakte
10 m²
1 slaapkamer(s) mogelijk

Slaapkamer

Berekende oppervlakte
12 m²
1 slaapkamer(s) mogelijk

Slaapkamer

Berekende oppervlakte
15 m²
1 slaapkamer(s) mogelijk

Slaapkamer

Berekende oppervlakte
9 m²
1 slaapkamer(s) mogelijk

Wasplaats

Toilet

Kelder

Berekende oppervlakte
19 m²

Keuken

Berekende oppervlakte
20 m²

Algemeen

Beschermd erfgoed
Nee
Opgenomen in een inventaris van onroerend erfgoed
Nee

Energie en elektriciteit

Nutsvoorzieningen
Elektriciteit
Aardgas aanwezig in de straat
Kabeldistributie
Stadswater
Telefoon
Internet
EPC-certificaat
Ja
Energielabel
C
Certificaatnummer
20250315012969
Berekend specifiek energieverbruik
205

Planningsinformatie

Stedenbouwkundige vergunning
Geen vergunning uitgereikt
Stedenbouwkundige verplichting
Nee
In inventaris van de niet uitgebate bedrijfsruimten
Nee
Voorwerp van rooiplan
Nee
Herstelmaatregel
Geen rechterlijke herstelmaatregel of bestuurlijke maatregel opgelegd
Verkavelingsvergunning uitgereikt
Nee
Voorkoopsrecht ruimtelijke ordening
Nee
Renovatieverplichting
Niet van toepassing/Non-applicable
In watergevoelig gebied
Niet van toepassing/Non-applicable
Sluiten
Rue de Mons 140 , 7090 Braine-le-Comte