
Appartement met terras en garage in Minderhout.
€ 285 000
Open Huizen Dag op 13/06 van 11:00 tot 12:00




+10 foto's weergeven










Appartement
Halfopen
2 slaapkamer(s)
1 badkamer(s)
60 m² woonoppervlakte
1,025 m² grondoppervlakte
A
Pandcode: 1476339
Beschrijving van het pand
Specificaties
Kenmerken
Algemeen
Woonoppervlakte
60.00m²
Grondoppervlakte
1025.00m²
Type oppervlakte
Bruto
Omgeving
Centrum
Woonkern
Nabij openbaar vervoer
Kadastraal inkomen
€685,00
Actueel rendement
822
Verwarming
Type
Centrale verwarming
Radiator
Radiatoren
Verwarmingsmateriaal
Gas
Diversen
Schrijnwerk
Aluminium
Dubbele beglazing
Isolatie
Dak
Spouwisolatie
Vloerplaat
Beglazing
Warm water
Doorstroomsysteem op CV
Gebouw
Bouwjaar
2009
Verdieping
1
Allerlei
Videofoon
Lift aanwezig
Ja
Details
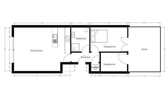
Woonkamer
Keuken
Badkamer
Berging
Slaapkamer
Slaapkamer
Terras
Garage
Inkomhal
Technische en juridische informatie
Algemeen
Beschermd erfgoed
Nee
Opgenomen in een inventaris van onroerend erfgoed
Nee
Energie en elektriciteit
Elektrische keuring
Keuringsverslag - Conform
Nutsvoorzieningen
Gas
Elektriciteit
Aansluiting riolering
Stadswater
Telefoon
Internet
Energielabel
A
Berekend specifiek energieverbruik
96
Planningsinformatie
Stedenbouwkundige vergunning
Vergunning uitgereikt
Stedenbouwkundige verplichting
Ja
In inventaris van de niet uitgebate bedrijfsruimten
Nee
Voorwerp van rooiplan
Nee
Herstelmaatregel
Geen rechterlijke herstelmaatregel of bestuurlijke maatregel opgelegd
Verkavelingsvergunning uitgereikt
Nee
Voorkoopsrecht ruimtelijke ordening
Nee
Stedelijke bestemming
Woongebied
Overstromingsgebied
Onroerend goed, niet gelegen in een overstromingsgebied
P(erceel) score
klasse A
G(ebouw) score
klasse A
Renovatieverplichting
Niet van toepassing/Non-applicable
In watergevoelig gebied
Niet van toepassing/Non-applicable

Bezoek tijdens de Open Huizen Dag
Bezoek de ERA Open Huizen Dag en geniet van onze ‘fast lane ervaring’! Inschrijven is niet verplicht, maar zo kunnen we je wel beter informeren voor- en tijdens je bezoek.
Sluiten
