Beschrijving van het pand

Te koop in Meise, Rustige gelegen woning met goede bereikbaarheid en 3 tot 4 slaapkamers.

Deze woning biedt een praktische indeling en een aangename woonomgeving. Met zijn 3 tot 4 slaapkamers is er ruimte voor het hele gezin. De ligging in een residentiële buurt nabij scholen, park en invalswegen combineert rust met vlotte verbinding naar Brussel en Antwerpen. Naastliggende dorpen zoals Wolvertem, Grimbergen en Kapelle-op-den-Bos zijn makkelijk bereikbaar.

Belangrijkste ruimtes:
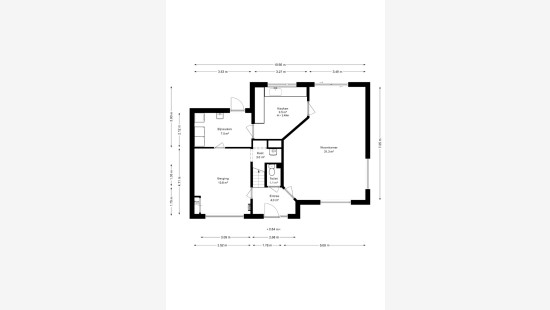
• Woonkamer met veel lichtinval.
• Keuken met dubbele spoelbak, vaatwasser, dampkap en gasfornuis.
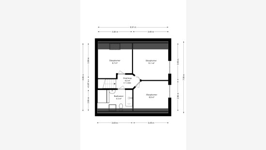
• slaapkamers (9 m², 10 m², 9 m² en mogelijkheid tot een 4de van 14m²).
• Badkamer met douche, ligbad, toilet en wastafel.
• Bijkeuken en berging.
• Overdekt terras en grote afgesloten tuin

Troeven:
• Gunstig EPC-C
• Mooi overdekt terras en rustige ligging in een doodlopende straat.
• Grote afgesloten tuin, 3 tot 4 kamers mogelijk en een extra carport naast de woning.
• Vlotte verbinding met autostrade richting Brussel/Antwerpen

Wens je een bezoek? Contacteer dan ERA LEUS & TOYE via 02/335.11.12 en plan een afspraak met Thierry Van Campenhout.

Specificaties

Kenmerken

Algemeen

Woonoppervlakte
160.00m²
Grondoppervlakte
747.00m²
Bebouwde oppervlakte
111.00m²
Breedte grond
15.10m
Type oppervlakte
Bruto
Oriëntatie perceel
Zuid-Oost
Omgeving
Groene omgeving
Omgeving school
Nabij openbaar vervoer
Nabij Park
Invalswegen
Kadastraal inkomen
€1207,00
Beschikbaar vanaf

Verwarming

Type
Centrale verwarming
Radiator
Radiatoren
Condensatieketel
Verwarmingsmateriaal
Gas

Diversen

Schrijnwerk
Aluminium
Hout
Dubbele beglazing
3-Dubbele beglazing
Isolatie
Dak
Beglazing
Muur
Warm water
Boiler op CV

Gebouw

Bouwjaar
1993
Aantal verdiepingen
1
Allerlei
Elektrische zonwering
Bouwmethode: Traditionele bouw
Lift aanwezig
Nee

Slaapkamer

Berekende oppervlakte
9 m²
Kamer eigenschappen
Laminaat
1 slaapkamer(s) mogelijk

Slaapkamer

Berekende oppervlakte
10 m²
Kamer eigenschappen
Laminaat
1 slaapkamer(s) mogelijk

Slaapkamer

Berekende oppervlakte
9 m²
Kamer eigenschappen
Laminaat
1 slaapkamer(s) mogelijk

Inkomhal

Berekende oppervlakte
4 m²
Kamer eigenschappen
Tegels

Toilet

Berekende oppervlakte
1 m²
Kamer eigenschappen
Muren betegeld
Tegels

Woonkamer

Berekende oppervlakte
31 m²
Kamer eigenschappen
Tegels

Keuken

Berekende oppervlakte
10 m²
Kamer eigenschappen
Tegels
Kamer items
Spoelbak dubbel
Vaatwasser
Dampkap
Fornuis (Gas)

Berging

Berekende oppervlakte
14 m²
1 slaapkamer(s) mogelijk

Bijkeuken

Berekende oppervlakte
8 m²
Kamer eigenschappen
Tegels

Nachthal

Berekende oppervlakte
4 m²
Kamer eigenschappen
Laminaat

Badkamer

Berekende oppervlakte
6 m²
Kamer eigenschappen
Muren betegeld
Tegels
Kamer items
Douche
Ligbad
Toilet
Eéngreepsmengkraan
Wastafel enkel

Algemeen

Beschermd erfgoed
Nee
Opgenomen in een inventaris van onroerend erfgoed
Nee

Energie en elektriciteit

Elektrische keuring
Keuringsverslag - Niet conform
Nutsvoorzieningen
Gas
Elektriciteit
Septische put
Aansluiting riolering
Stadswater
Waterverzachter
EPC-certificaat
Ja
Energielabel
C
Certificaatnummer
20260402-0003837104-RES-1
Berekend specifiek energieverbruik
263

Planningsinformatie

Stedenbouwkundige vergunning
Vergunning uitgereikt
Stedenbouwkundige verplichting
Nee
In inventaris van de niet uitgebate bedrijfsruimten
Nee
Voorwerp van rooiplan
Nee
Herstelmaatregel
Geen rechterlijke herstelmaatregel of bestuurlijke maatregel opgelegd
Verkavelingsvergunning uitgereikt
Nee
Voorkoopsrecht ruimtelijke ordening
Nee
Stedelijke bestemming
Woongebied
Overstromingsgebied
Onroerend goed, niet gelegen in een overstromingsgebied
P(erceel) score
klasse A
G(ebouw) score
klasse A
Renovatieverplichting
Niet van toepassing/Non-applicable
In watergevoelig gebied
Niet van toepassing/Non-applicable
Sluiten
Thierry Van Campenhout
Knikkershof 16 , 1860 Meise