Beschrijving van het pand

Te koop: halfopen woning in Meise, centraal gelegen nabij invalswegen en op korte afstand van de autostrade.

Deze woning biedt een ideale combinatie van landelijke rust en vlotte bereikbaarheid. Met een gunstig EPC-label B geniet u van energiezuinig comfort. Een groot terras en een afgesloten tuin zorgen voor de mooie zomerdagen met vrienden. De ruime garage biedt niet alleen plaats voor uw wagen, maar ook extra opslagruimte. Gelegen in een kindvriendelijke buurt, dicht bij scholen, park en openbaar vervoer. Andere dorpen zoals Wolvertem, Grimbergen en Kapelle-op-den-Bos zijn makkelijke bereikbaar.

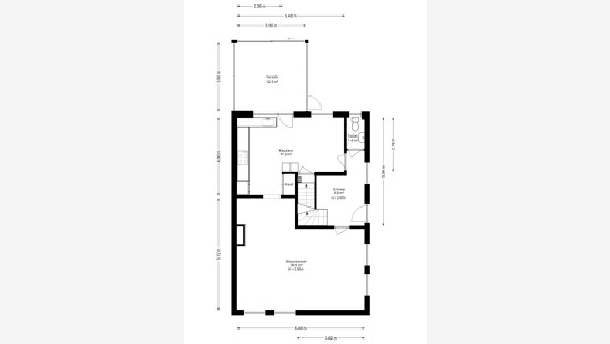
Indeling van de woning:
Gelijkvloers verdiep: inkomhal met toilet, woonkamer met aansluitende keuken die voorzien is van toestellen. Via de keuken heb je toegang tot de veranda en het terras.
1ste verdiep: 3 kamers, een apart toilet en een badkamer voorzien van douche en wastafel.
Zolder: De zolder is bereikbaar via een plooitrap en zorgt nog voor extra opbergruimte.

Troeven:
• Centrale ligging en kort bij de autostrade
• Energiezuinig dankzij EPC-label B
• Extra opslagruimte in de garage

Wens je een bezoek? Contacteer dan ERA LEUS & TOYE via 02/335.11.12 en plan een afspraak met Thierry Van Campenhout.

Specificaties

Kenmerken

Algemeen

Woonoppervlakte
159.00m²
Grondoppervlakte
708.00m²
Bebouwde oppervlakte
87.00m²
Breedte grond
10.10m
Type oppervlakte
Bruto
Oriëntatie perceel
Noord-West
Omgeving
Landelijk
Omgeving school
Nabij Park
Invalswegen
Kadastraal inkomen
€1388,00
Beschikbaar vanaf

Verwarming

Type
Centrale verwarming
Radiator
Radiatoren
Verwarmingsmateriaal
Gas

Diversen

Schrijnwerk
Aluminium
PVC
Dubbele beglazing
Isolatie
Dak
Vloerplaat
Beglazing
Muur
Warm water
Doorstroomsysteem op CV
Hoogrendementsketel

Gebouw

Bouwjaar
1975
Aantal verdiepingen
2
Allerlei
Manuele rolluiken
Bouwmethode: Traditionele bouw
Lift aanwezig
Nee

Slaapkamer

Berekende oppervlakte
13 m²
Kamer eigenschappen
Vinyl
1 slaapkamer(s) mogelijk

Slaapkamer

Berekende oppervlakte
13 m²
Kamer eigenschappen
Vinyl
1 slaapkamer(s) mogelijk

Slaapkamer

Berekende oppervlakte
13 m²
Kamer eigenschappen
Vinyl
1 slaapkamer(s) mogelijk

Woonkamer

Berekende oppervlakte
31 m²
Kamer eigenschappen
Tegels
L-vorm

Keuken

Berekende oppervlakte
18 m²
Kamer eigenschappen
Tegels
Kamer items
Spoelbak dubbel
Vaatwasser
Dampkap
Koelkast
Fornuis (Gas)
Combi oven
Ontbijthoek
Ingemaakte kasten

Veranda

Berekende oppervlakte
12 m²
Kamer eigenschappen
Tegels
Kamer items
Verwarmd

Kelder

Berekende oppervlakte
8 m²
Kamer items
Deels onderkelderd
Technische ruimte

Inkomhal

Berekende oppervlakte
8 m²
Kamer eigenschappen
Tegels

Toilet

Berekende oppervlakte
1 m²
Kamer eigenschappen
Muren betegeld
Tegels
Kamer items
Met handenwasser

Nachthal

Berekende oppervlakte
7 m²
Kamer eigenschappen
Vinyl

Toilet

Berekende oppervlakte
1 m²
Kamer eigenschappen
Tegels

Badkamer

Berekende oppervlakte
5 m²
Kamer eigenschappen
Muren betegeld
Tegels
Kamer items
Inloopdouche
Wastafel enkel in meubel
Eéngreepsmengkraan
Thermostatische kraan

Garage

Berekende oppervlakte
35 m²
Kamer eigenschappen
Tegels
Kamer items
Automatische garagepoort
Berging
Sectionale poort
Verlichting

Tuinhuis

Berekende oppervlakte
10 m²

Terras

Berekende oppervlakte
40 m²
Kamer eigenschappen
Natuursteen

Zolder

Berekende oppervlakte
35 m²
Kamer eigenschappen
Houten vloer
Kamer items
Zolderluik
Vlizotrap

Berging

Berekende oppervlakte
1 m²
Kamer items
Ingemaakte kasten

Algemeen

Beschermd erfgoed
Nee
Opgenomen in een inventaris van onroerend erfgoed
Nee

Energie en elektriciteit

Elektrische keuring
Keuringsverslag - Niet conform
Nutsvoorzieningen
Gas
Elektriciteit
Septische put
Aansluiting riolering
Stadswater
Waterverzachter
EPC-certificaat
Ja
Energielabel
B
Certificaatnummer
20250825-0003666878-RES-1
Berekend specifiek energieverbruik
159

Planningsinformatie

Stedenbouwkundige vergunning
Vergunning uitgereikt
Stedenbouwkundige verplichting
Nee
In inventaris van de niet uitgebate bedrijfsruimten
Nee
Voorwerp van rooiplan
Nee
Herstelmaatregel
Geen rechterlijke herstelmaatregel of bestuurlijke maatregel opgelegd
Verkavelingsvergunning uitgereikt
Nee
Voorkoopsrecht ruimtelijke ordening
Nee
Stedelijke bestemming
Woongebied met landelijk karakter
Overstromingsgebied
Onroerend goed, niet gelegen in een overstromingsgebied
P(erceel) score
klasse A
G(ebouw) score
klasse A
Renovatieverplichting
Niet van toepassing/Non-applicable
In watergevoelig gebied
Niet van toepassing/Non-applicable
Sluiten
Plasstraat 12 , 1860 Meise