
Ruime woning met karakter te koop in Meise.
€ 825 000
Open Huizen Dag op 13/06 van 13:00 tot 14:00




+24 foto's weergeven
























Huis
Open
4 slaapkamer(s)
2 badkamer(s)
260 m² woonoppervlakte
1,535 m² grondoppervlakte
D
Pandcode: 1473678
Beschrijving van het pand
Specificaties
Kenmerken
Algemeen
Woonoppervlakte
260.00m²
Grondoppervlakte
1535.00m²
Type oppervlakte
Bruto
Omgeving
Centrum
Groene omgeving
Omgeving school
Nabij openbaar vervoer
Nabij Park
Invalswegen
Kadastraal inkomen
€2191,00
Verwarming
Type
Centrale verwarming
Radiator
Radiatoren
Verwarmingsmateriaal
Gas
Diversen
Schrijnwerk
PVC
Dubbele beglazing
Dakvenster
Isolatie
Dak
Beglazing
Warm water
Boiler op CV
Gebouw
Bouwjaar
van 1919 tot 1930
Allerlei
Alarm
Bouwmethode: Traditionele bouw
Lift aanwezig
Nee
Details
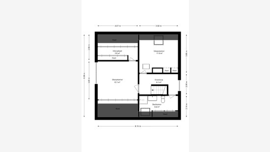
Slaapkamer
Dressing
Slaapkamer
Zolder
Badkamer
Hal
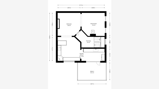
Woonkamer
Keuken
Terras
Hal
Inkomhal
Bureel
Toilet
Wasplaats
Slaapkamer
Bureel
Dressing
Badkamer
Hal
Toilet
Slaapkamer
Hobbyruimte
Hobbyruimte
Kelder
Kelder
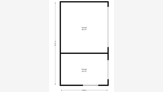
Garage
Garage
Technische en juridische informatie
Algemeen
Beschermd erfgoed
Nee
Opgenomen in een inventaris van onroerend erfgoed
Nee
Energie en elektriciteit
Elektrische keuring
Keuringsverslag - Conform
Nutsvoorzieningen
Gas
Elektriciteit
Aansluiting riolering
Fotovoltaïsche panelen
Stadswater
Waterverzachter
EPC-certificaat
Ja
Energielabel
D
Certificaatnummer
20251110-0003566672-RES-3
Berekend specifiek energieverbruik
390
Planningsinformatie
Stedenbouwkundige vergunning
Vergunning uitgereikt
Stedenbouwkundige verplichting
Ja
In inventaris van de niet uitgebate bedrijfsruimten
Nee
Voorwerp van rooiplan
Nee
Verkavelingsvergunning uitgereikt
Nee
Voorkoopsrecht ruimtelijke ordening
Ja
Stedelijke bestemming
Woongebied
Overstromingsgebied
Onroerend goed, niet gelegen in een overstromingsgebied
P(erceel) score
klasse A
G(ebouw) score
klasse A
Renovatieverplichting
Niet van toepassing/Non-applicable
In watergevoelig gebied
Niet van toepassing/Non-applicable


Bezoek tijdens de Open Huizen Dag
Bezoek de ERA Open Huizen Dag en geniet van onze ‘fast lane ervaring’! Inschrijven is niet verplicht, maar zo kunnen we je wel beter informeren voor- en tijdens je bezoek.
Sluiten