
Huis
Halfopen
2 slaapkamer(s)
1 badkamer(s)
173 m² woonoppervlakte
275 m² grondoppervlakte
C
Pandcode: 1468467
Beschrijving van het pand
Specificaties
Kenmerken
Algemeen
Woonoppervlakte
173.00m²
Grondoppervlakte
275.00m²
Bebouwde oppervlakte
75.00m²
Breedte grond
5.90m
Type oppervlakte
Bruto
Oriëntatie perceel
W
Oriëntatie voorgevel
Oost
Omgeving
Centrum
Omgeving school
Nabij openbaar vervoer
Nabij treinstation
Kadastraal inkomen
€981,00
Beschikbaar vanaf
Verwarming
Type
Centrale verwarming
Radiator
Radiatoren
Verwarmingsmateriaal
Gas
Diversen
Schrijnwerk
PVC
Hout
Dubbele beglazing
Isolatie
Beglazing
Gevelisolatie
Dakisolatie
Warm water
Doorstroomsysteem op CV
Gebouw
Bouwjaar
van 1919 tot 1930
Aantal verdiepingen
2
Lift aanwezig
Nee
Details
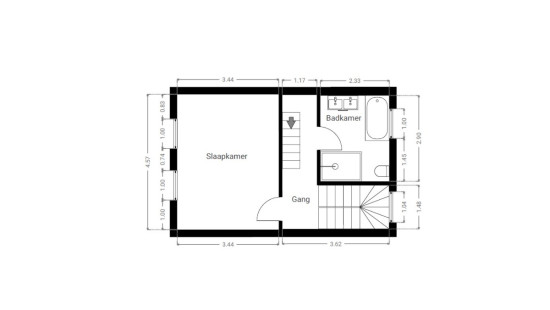
Slaapkamer
Slaapkamer
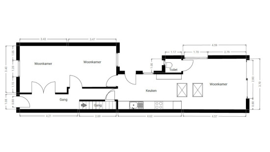
Woonkamer
Eetkamer
Bureel
Keuken
Toilet
Badkamer
Technische en juridische informatie
Algemeen
Beschermd erfgoed
Nee
Opgenomen in een inventaris van onroerend erfgoed
Nee
Energie en elektriciteit
Elektrische keuring
Keuringsverslag - Conform
Nutsvoorzieningen
Gas
Elektriciteit
Aansluiting riolering
Kabeldistributie
Telefoon
Internet
Energielabel
C
Berekend specifiek energieverbruik
237
Planningsinformatie
Stedenbouwkundige vergunning
Vergunning uitgereikt
Stedenbouwkundige verplichting
Nee
In inventaris van de niet uitgebate bedrijfsruimten
Nee
Voorwerp van rooiplan
Nee
Herstelmaatregel
Geen rechterlijke herstelmaatregel of bestuurlijke maatregel opgelegd
Verkavelingsvergunning uitgereikt
Nee
Voorkoopsrecht ruimtelijke ordening
Nee
Stedelijke bestemming
Woongebied
Overstromingsgebied
Onroerend goed, niet gelegen in een overstromingsgebied
P(erceel) score
klasse A
G(ebouw) score
klasse A
Renovatieverplichting
Niet van toepassing/Non-applicable
In watergevoelig gebied
Niet van toepassing/Non-applicable
Sluiten




















