Beschrijving van het pand

[[ DIT PAND NEEMT DEEL AAN DE ERA OPEN HUIZEN DAG OP 14/3 VAN 11:00 TOT 12:00 ]]

Te koop: instapklaar appartement in de tuinen van Jette, op Burgemeester Etienne Demunterlaan 27. Dit recent gebouw uit 2014 biedt een comfortabele woonomgeving op de stadsrand, met scholen, openbaar vervoer, parken en invalswegen binnen handbereik. Een ondergrondse parkeerplaats (+20.000 €) maakt het plaatje compleet. Het zonnige terras nodigt uit tot ontspannen momenten in een rustige setting.
 
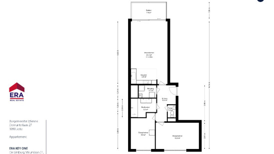
Het appartement beschikt over een lichtrijke woonkamer (23,3 m²) met toegang tot het terras, een praktische open keuken (4,8 m²), twee slaapkamers (13,9 m² en 9,6 m²), een badkamer (5,2 m²), inkomhal (6,5 m²), wasplaats (2,7 m²) met aansluitingen voor wasmachine en droogkast, kelder en een parkeerplaats.
 
Troeven:
• Ondergrondse parkeerplaats (+20.000 €)
• Recent gebouw uit 2014 - EPC B-
• Zonnig terras
 
Neem vandaag nog contact op voor een bezoek.
 
JOUW DROOMAPPARTEMENT. ZO GEVONDEN!

Specificaties

Kenmerken

Algemeen

Woonoppervlakte
80.00m²
Grondoppervlakte
3121.00m²
Type oppervlakte
Bruto
Omgeving
Stadsrand
Groene omgeving
Omgeving school
Nabij openbaar vervoer
Nabij Park
Nabij treinstation
Invalswegen
Nabij ziekenhuis
Kadastraal inkomen
€1256,00
Beschrijving gemeenschappelijke lasten
+/- 100 (in afwachting van antwoord syndicus) - (en attente de documents du syndic)

Verwarming

Type
Individuele verwarming
Radiator
Radiatoren
Radiatoren met thermostatische kraan
Verwarmingsketel
Verwarmingsmateriaal
Gas

Diversen

Schrijnwerk
Dubbele beglazing
Isolatie
Dak
Beglazing
Detailinfo op aanvraag
Zie lastenboek
Zie energieprestatiecertificaat
Warm water
Doorstroomsysteem op CV

Gebouw

Bouwjaar
2014
Verdieping
2
Allerlei
Veiligheidsdeur
Videofoon
Bouwmethode: Betonbouw
Lift aanwezig
Ja

Algemeen

Beschermd erfgoed
Nee
Opgenomen in een inventaris van onroerend erfgoed
Nee

Energie en elektriciteit

Elektrische keuring
Keuringsverslag - Conform
Nutsvoorzieningen
Gas
Elektriciteit
Aansluiting riolering
Kabeldistributie
Stadswater
Telefoon
Internet
EPC-certificaat
Ja
Energielabel
B
Certificaatnummer
494446-N-1-15-1-2
Berekend specifiek energieverbruik
81
CO2-uitstoot
15.00
Berekend totaal energieverbruik
6480

Planningsinformatie

Stedenbouwkundige verplichting
Ja
In inventaris van de niet uitgebate bedrijfsruimten
Nee
Voorwerp van rooiplan
Nee
Verkavelingsvergunning uitgereikt
Nee
Voorkoopsrecht ruimtelijke ordening
Nee
Renovatieverplichting
Niet van toepassing/Non-applicable
In watergevoelig gebied
Niet van toepassing/Non-applicable
Sluiten
Benoit Pirlotte
Avenue du Bourgmestre Etienne Demunter 27 2/1, 1090 Jette