
Huis
Halfopen
3 slaapkamer(s)
1 badkamer(s)
139 m² woonoppervlakte
286 m² grondoppervlakte
C
Pandcode: 1412664
Beschrijving van het pand
Specificaties
Kenmerken
Algemeen
Woonoppervlakte
139.00m²
Grondoppervlakte
286.00m²
Type oppervlakte
Bruto
Omgeving
Toeristische zone
Omgeving school
Nabij openbaar vervoer
Kadastraal inkomen
€452,00
Verwarming
Type
Niet bepaald
Radiator
Verwarmingsketel
Verwarmingsmateriaal
Pellets
Diversen
Schrijnwerk
PVC
Dubbele beglazing
Isolatie
Detailinfo op aanvraag
Warm water
Boiler op CV
Gebouw
Bouwjaar
1948
Lift aanwezig
Nee
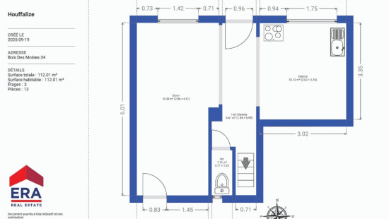
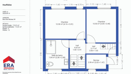
Details
Slaapkamer
Slaapkamer
Slaapkamer
Woonkamer
Inkomhal
Toilet
Keuken
Badkamer
Hal
Hal
Hal
Zolder
Technische en juridische informatie
Algemeen
Beschermd erfgoed
Nee
Opgenomen in een inventaris van onroerend erfgoed
Nee
Energie en elektriciteit
Elektrische keuring
Keuringsverslag - Niet conform
Nutsvoorzieningen
Elektriciteit
Aansluiting riolering
Kabeldistributie
Stadswater
Telefoon
Internet
EPC-certificaat
Ja
Energielabel
C
EPB
C
E-peil
C
Certificaatnummer
20251002019762
Berekend specifiek energieverbruik
199
CO2-uitstoot
4.00
Berekend totaal energieverbruik
27607
Planningsinformatie
Stedenbouwkundige vergunning
Woning gebouwd voor 1962
Stedenbouwkundige verplichting
Ja
In inventaris van de niet uitgebate bedrijfsruimten
Nee
Voorwerp van rooiplan
Nee
Herstelmaatregel
Geen rechterlijke herstelmaatregel of bestuurlijke maatregel opgelegd
Verkavelingsvergunning uitgereikt
Nee
Voorkoopsrecht ruimtelijke ordening
Nee
Stedelijke bestemming
La zone d'habitat
Renovatieverplichting
Niet van toepassing/Non-applicable
In watergevoelig gebied
Niet van toepassing/Non-applicable
Sluiten
























