
3-Slaapkamer Huis met Werkplaats Te Koop in Houffalize 🌿
€ 260 000




+21 foto's weergeven





















Huis
Open
3 slaapkamers (7 mogelijk)
1 badkamer(s)
454 m² woonoppervlakte
330 m² grondoppervlakte
C
Pandcode: 1415592
Beschrijving van het pand
Specificaties
Kenmerken
Algemeen
Woonoppervlakte
454.12m²
Grondoppervlakte
330.00m²
Bebouwde oppervlakte
521.58m²
Breedte grond
28.00m
Type oppervlakte
Bruto
Oriëntatie perceel
Zuid
Oriëntatie voorgevel
Zuid
Omgeving
Woonkern
Groene omgeving
Residentieel
Landelijk
Omgeving school
Nabij openbaar vervoer
Villawijk
Invalswegen
Nabij ziekenhuis
Kadastraal inkomen
€827,00
Verwarming
Type
Centrale verwarming
Radiator
Inbouwhaard
Verwarmingsketel
Verwarmingsmateriaal
Hout
Stookolie
Diversen
Schrijnwerk
Hout
Dubbele beglazing
Isolatie
Detailinfo op aanvraag
Lijstwerk
Warm water
Boiler op CV
Gebouw
Bouwjaar
van 1900 tot 1918
Lift aanwezig
Nee
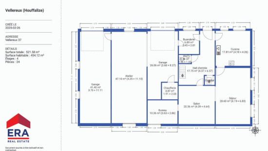
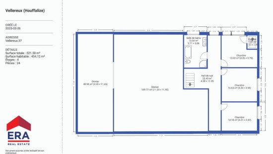
Details
Garage
Atelier
Garage
Stookruimte
Bureel
Wasplaats
Toilet
Inkomhal
Woonkamer
Keuken
Woonkamer
Zolder
Hal
Schuur
Zolder
Zolder
Badkamer
Nachthal
Slaapkamer
Slaapkamer
Slaapkamer
Kelder
Technische en juridische informatie
Algemeen
Beschermd erfgoed
Nee
Opgenomen in een inventaris van onroerend erfgoed
Nee
Energie en elektriciteit
Elektrische keuring
Keuringsverslag in aanvraag
Nutsvoorzieningen
Elektriciteit
Septische put
Kabeldistributie
Stadswater
Telefoon
Elektriciteit modern
Internet
EPC-certificaat
Ja
Energielabel
C
E-peil
C
Certificaatnummer
20250304020073
Berekend specifiek energieverbruik
250
CO2-uitstoot
62.00
Berekend totaal energieverbruik
71129
Planningsinformatie
Stedenbouwkundige vergunning
Woning gebouwd voor 1962
Stedenbouwkundige verplichting
Ja
In inventaris van de niet uitgebate bedrijfsruimten
Nee
Voorwerp van rooiplan
Nee
Herstelmaatregel
Geen rechterlijke herstelmaatregel of bestuurlijke maatregel opgelegd
Verkavelingsvergunning uitgereikt
Nee
Voorkoopsrecht ruimtelijke ordening
Nee
Stedelijke bestemming
La zone d'habitat à caractère rural
Overstromingsgebied
Onroerend goed, niet gelegen in een overstromingsgebied
Renovatieverplichting
Niet van toepassing/Non-applicable
In watergevoelig gebied
Niet van toepassing/Non-applicable
Sluiten
