
Chalet gelegen in Hogne
Verkocht




+12 foto's weergeven












Huis
Open
2 slaapkamer(s)
1 badkamer(s)
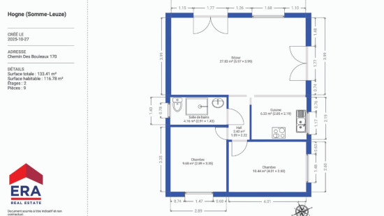
115 m² woonoppervlakte
1,365 m² grondoppervlakte
G
Pandcode: 1426416
Beschrijving van het pand
Specificaties
Kenmerken
Algemeen
Woonoppervlakte
115.00m²
Grondoppervlakte
1365.00m²
Type oppervlakte
Bruto
Oriëntatie perceel
Noord-West
Oriëntatie voorgevel
Zuid-Oost
Omgeving
Toeristische zone
Groene omgeving
Residentieel
Landelijk
Bos-Park
Nabij ziekenhuis
Kadastraal inkomen
€409,00
Verwarming
Type
Centrale verwarming
Radiator
Inbouwhaard
Verwarmingsmateriaal
Hout
Diversen
Schrijnwerk
Hout
Enkele beglazing
Isolatie
Lijstwerk
Zie energieprestatiecertificaat
Warm water
Boiler Elektrisch
Gebouw
Bouwjaar
1975
Lift aanwezig
Nee
Details
Tuin
Hal
Badkamer
Living
Keuken
Slaapkamer
Slaapkamer
Kelder
Technische en juridische informatie
Algemeen
Beschermd erfgoed
Nee
Opgenomen in een inventaris van onroerend erfgoed
Nee
Energie en elektriciteit
Elektrische keuring
Keuringsverslag - Niet conform
Nutsvoorzieningen
Elektriciteit
Septische put
Kabeldistributie
Stadswater
Telefoon
Internet
EPC-certificaat
Ja
Energielabel
G
E-peil
G
Certificaatnummer
20190704016498
Berekend specifiek energieverbruik
710
CO2-uitstoot
108.00
Berekend totaal energieverbruik
45706
Planningsinformatie
Stedenbouwkundige vergunning
Vergunning uitgereikt
Stedenbouwkundige verplichting
Nee
In inventaris van de niet uitgebate bedrijfsruimten
Nee
Voorwerp van rooiplan
Nee
Herstelmaatregel
Geen rechterlijke herstelmaatregel of bestuurlijke maatregel opgelegd
Verkavelingsvergunning uitgereikt
Nee
Voorkoopsrecht ruimtelijke ordening
Nee
Stedelijke bestemming
La zone de loisirs
Overstromingsgebied
Onroerend goed, niet gelegen in een overstromingsgebied
Renovatieverplichting
Niet van toepassing/Non-applicable
In watergevoelig gebied
Niet van toepassing/Non-applicable
Sluiten
