
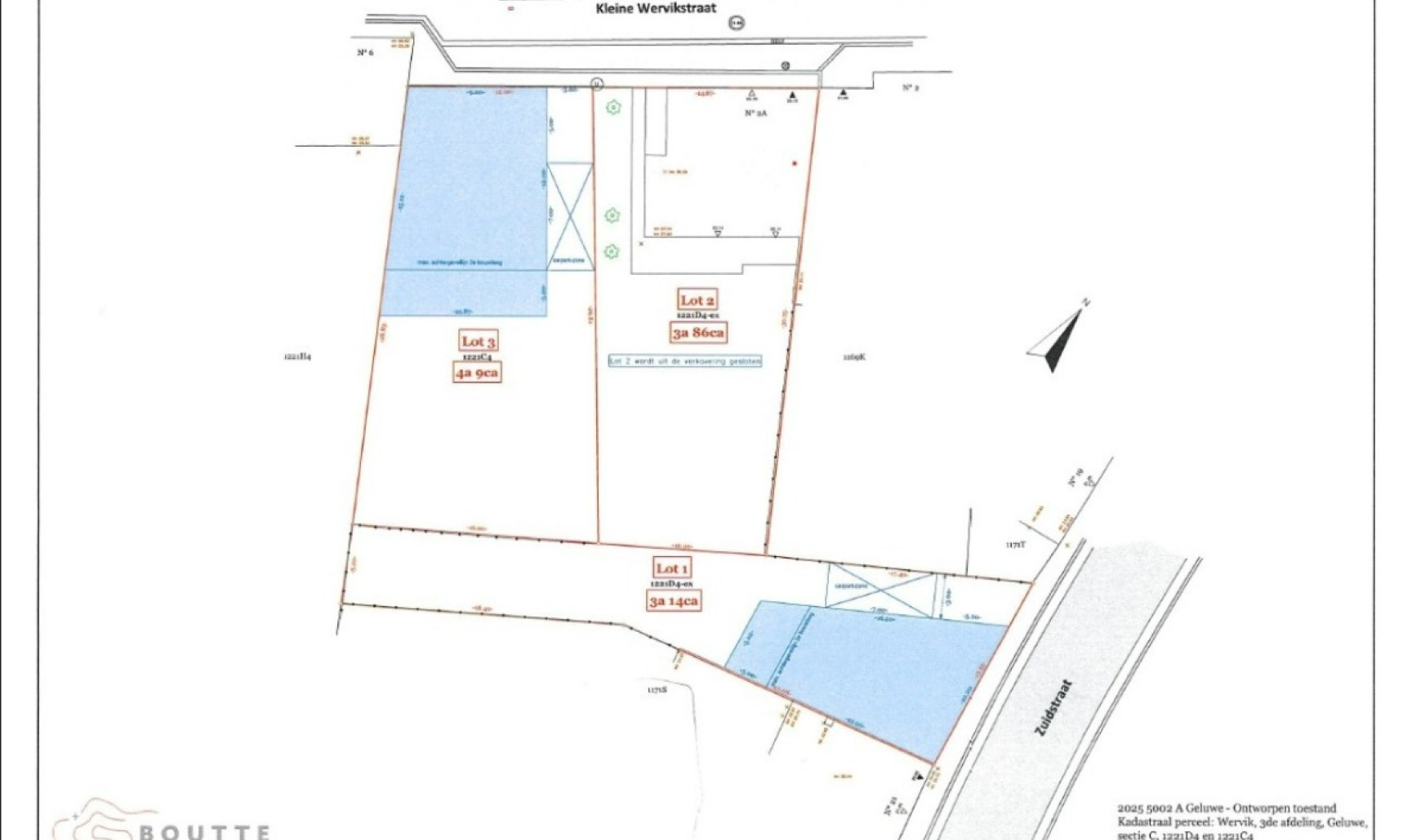
Grond
Open
243 m² woonoppervlakte
409 m² grondoppervlakte
Pandcode: 1472924
Beschrijving van het pand
Specificaties
Kenmerken
Algemeen
Woonoppervlakte
243.00m²
Grondoppervlakte
409.00m²
Bebouwbare oppervlakte
135.00m²
Bebouwde oppervlakte
135.00m²
Breedte grond
12.00m
Type oppervlakte
Bruto
Gebouw
Lift aanwezig
Nee
Technische en juridische informatie
Algemeen
Beschermd erfgoed
Nee
Opgenomen in een inventaris van onroerend erfgoed
Nee
Energie en elektriciteit
Energielabel
-
Planningsinformatie
Stedenbouwkundige vergunning
Geen vergunning uitgereikt
Stedenbouwkundige verplichting
Ja
In inventaris van de niet uitgebate bedrijfsruimten
Nee
Voorwerp van rooiplan
Nee
Verkavelingsvergunning uitgereikt
Nee
Voorkoopsrecht ruimtelijke ordening
Nee
Stedelijke bestemming
Woongebied
Overstromingsgebied
Onroerend goed, niet gelegen in een overstromingsgebied
P(erceel) score
klasse A
G(ebouw) score
klasse A
Renovatieverplichting
Niet van toepassing/Non-applicable
In watergevoelig gebied
Niet van toepassing/Non-applicable
Sluiten






