
Huis
Halfopen
3 slaapkamer(s)
1 badkamer(s)
408 m² woonoppervlakte
656 m² grondoppervlakte
C
Pandcode: 1468351
Beschrijving van het pand
Specificaties
Kenmerken
Algemeen
Woonoppervlakte
408.00m²
Grondoppervlakte
656.00m²
Type oppervlakte
Bruto
Oriëntatie perceel
Oost
Oriëntatie voorgevel
West
Omgeving
Residentieel
Nabij openbaar vervoer
Nabij treinstation
Invalswegen
Kadastraal inkomen
€1383,00
Verwarming
Type
Centrale verwarming
Radiator
Kachel(s)
Radiatoren met thermostatische kraan
Verwarmingsmateriaal
Hout
Zonnepanelen
Stookolie
Diversen
Schrijnwerk
Hout
Dubbele beglazing
Isolatie
Detailinfo op aanvraag
Warm water
Boiler op CV
Gebouw
Bouwjaar
1982
Allerlei
Alarm
Lift aanwezig
Nee
Zonnepanelen
Zonnepanelen
Zonnepanelen aanwezig – Inbegrepen in de prijs
Details
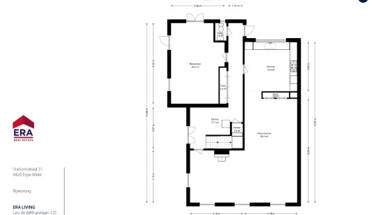
Inkomhal
Living
Keuken
Toilet
Bijkeuken
Terras
Terras
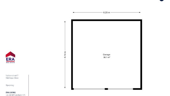
Garage
Tuin
Parkeerplaats
Slaapkamer
Slaapkamer
Slaapkamer
Badkamer
Nachthal
Berging
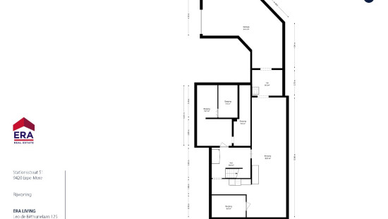
Berging
Berging
Berging
Berging
Berging
Bijkeuken
Garage
Hal
Garage
Technische en juridische informatie
Algemeen
Beschermd erfgoed
Nee
Opgenomen in een inventaris van onroerend erfgoed
Nee
Energie en elektriciteit
Elektrische keuring
Keuringsverslag - Niet conform
Nutsvoorzieningen
Gas
Elektriciteit
Grondwaterput
Regenwaterput
Aansluiting riolering
Fotovoltaïsche panelen
Stadswater
Telefoon
Internet
Waterverzachter
EPC-certificaat
Ja
Energielabel
C
Certificaatnummer
20251105-0003725238-RES-1
Berekend specifiek energieverbruik
282
Planningsinformatie
Stedenbouwkundige vergunning
Geen vergunning uitgereikt
Stedenbouwkundige verplichting
Nee
In inventaris van de niet uitgebate bedrijfsruimten
Nee
Voorwerp van rooiplan
Nee
Verkavelingsvergunning uitgereikt
Nee
Voorkoopsrecht ruimtelijke ordening
Nee
Overstromingsgebied
Onroerend goed, niet gelegen in een overstromingsgebied
P(erceel) score
klasse C
G(ebouw) score
klasse A
Renovatieverplichting
Niet van toepassing/Non-applicable
In watergevoelig gebied
Niet van toepassing/Non-applicable
Sluiten
























