
Huis
Open
3 slaapkamer(s)
1 badkamer(s)
162 m² woonoppervlakte
561 m² grondoppervlakte
Pandcode: 1455604
Beschrijving van het pand
Specificaties
Kenmerken
Algemeen
Woonoppervlakte
162.00m²
Grondoppervlakte
561.00m²
Bebouwde oppervlakte
93.00m²
Breedte grond
21.06m
Type oppervlakte
Bruto
Oriëntatie perceel
Zuid
Oriëntatie voorgevel
Noord
Omgeving
Invalswegen
Kadastraal inkomen
€5,00
Verwarming
Type
Niet bepaald
Radiator
Niet bepaald
Verwarmingsmateriaal
Niet bepaald
Diversen
Schrijnwerk
Niet bepaald
Isolatie
Niet bepaald
Warm water
Niet bepaald
Gebouw
Bouwjaar
2025
Lift aanwezig
Nee
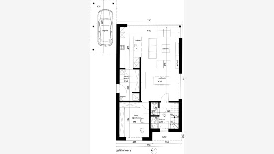
Details
Badkamer
Berging
Bureel
Carport
Inkomhal
Keuken
Living
Nachthal
Slaapkamer
Slaapkamer
Slaapkamer
Toilet
Toilet
Technische en juridische informatie
Algemeen
Beschermd erfgoed
Nee
Opgenomen in een inventaris van onroerend erfgoed
Nee
Energie en elektriciteit
Nutsvoorzieningen
Niet bepaald
Aansluiting riolering
EPC-certificaat
Niet van toepassing
Energielabel
-
Planningsinformatie
Stedenbouwkundige vergunning
Geen vergunning uitgereikt
Stedenbouwkundige verplichting
Ja
In inventaris van de niet uitgebate bedrijfsruimten
Nee
Voorwerp van rooiplan
Ja
Herstelmaatregel
Geen rechterlijke herstelmaatregel of bestuurlijke maatregel opgelegd
Verkavelingsvergunning uitgereikt
Ja
Voorkoopsrecht ruimtelijke ordening
Nee
Stedelijke bestemming
Woongebied
Overstromingsgebied
Onroerend goed, niet gelegen in een overstromingsgebied
P(erceel) score
klasse C
G(ebouw) score
Onbekend
Renovatieverplichting
Niet van toepassing/Non-applicable
In watergevoelig gebied
Niet van toepassing/Non-applicable
Sluiten









