Beschrijving van het pand

Charmant huis met drie gevels op een perceel van 843 m², ideaal gelegen in het rustige dorpje Braives. Het heeft een woonoppervlakte van ongeveer 150 m² en biedt u de mogelijkheid om het volledig naar eigen smaak te renoveren.
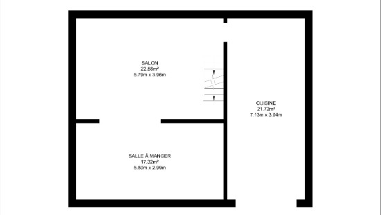
Op de begane grond: ruime woon- en eetkamer, keuken met toegang tot het grote terras. Op de 1e verdieping: een overloop, 4 slaapkamers (of 3 en een dressing/kantoor). Op de 2e verdieping: 1 ingerichte zolder (een extra slaapkamer) en een deel van de zolder dat niet is ingericht. In de kelder: een kelderruimte. 
Extra kenmerken: houten kozijnen met dubbele beglazing, stookolieverwarming, kadastraal inkomen 354 €, EPB G. Te voorzien werkzaamheden (installatie van een verwarmingssysteem, elektriciteit aanpassen aan de normen, kroonlijst vervangen, badkamer, pleisterwerk op enkele kleine plaatsen en schilderwerk, opfrisbeurt, …). 
Virtuele bezichtiging beschikbaar! 

Bieding indienen vanaf 249.000 €. Informatie ter indicatie en niet-bindend. Deze advertentie vormt geen aanbod. 

Specificaties

Kenmerken

Algemeen

Woonoppervlakte
159.00m²
Grondoppervlakte
849.00m²
Type oppervlakte
Netto
Oriëntatie perceel
Noord-West
Oriëntatie voorgevel
Zuid-Oost
Omgeving
Centrum
Woonkern
Omgeving school
Kadastraal inkomen
€354,00

Verwarming

Type
Centrale verwarming
Radiator
Radiatoren met thermostatische kraan
Verwarmingsmateriaal
Stookolie

Diversen

Schrijnwerk
Hout
Dubbele beglazing
Isolatie
Zie energieprestatiecertificaat
Warm water
Boiler Elektrisch

Gebouw

Bouwjaar
van 1919 tot 1930
Aantal verdiepingen
2
Allerlei
Manuele rolluiken
Manuele zonwering
Lift aanwezig
Nee

Slaapkamer

Berekende oppervlakte
14 m²
1 slaapkamer(s) mogelijk

Slaapkamer

Berekende oppervlakte
10 m²
1 slaapkamer(s) mogelijk

Slaapkamer

Berekende oppervlakte
11 m²
1 slaapkamer(s) mogelijk

Slaapkamer

Berekende oppervlakte
11 m²
1 slaapkamer(s) mogelijk

Kelder

Berekende oppervlakte
21 m²

Kelder

Berekende oppervlakte
10 m²

Keuken

Berekende oppervlakte
22 m²

Eetkamer

Berekende oppervlakte
17 m²

Woonkamer

Berekende oppervlakte
23 m²

Badkamer

Berekende oppervlakte
5 m²

Nachthal

Berekende oppervlakte
7 m²

Zolder

Berekende oppervlakte
27 m²
1 slaapkamer(s) mogelijk

Zolder

Berekende oppervlakte
12 m²

Tuin

Berekende oppervlakte
849 m²
Kamer items
Tuinhuis
Terras

Algemeen

Beschermd erfgoed
Nee
Opgenomen in een inventaris van onroerend erfgoed
Nee

Energie en elektriciteit

Elektrische keuring
Geen keuringsverslag
Nutsvoorzieningen
Elektriciteit
Stadswater
EPC-certificaat
Ja
Energielabel
G
EPB
G
E-peil
G
Certificaatnummer
20260313002872
EPB-beschrijving
G
Berekend specifiek energieverbruik
623
CO2-uitstoot
154.00
Berekend totaal energieverbruik
117437

Planningsinformatie

Stedenbouwkundige vergunning
Woning gebouwd voor 1962
Stedenbouwkundige verplichting
Nee
In inventaris van de niet uitgebate bedrijfsruimten
Nee
Voorwerp van rooiplan
Nee
Herstelmaatregel
Geen rechterlijke herstelmaatregel of bestuurlijke maatregel opgelegd
Verkavelingsvergunning uitgereikt
Nee
Voorkoopsrecht ruimtelijke ordening
Nee
Stedelijke bestemming
La zone d'habitat
Overstromingsgebied
Onroerend goed, niet gelegen in een overstromingsgebied
Renovatieverplichting
Niet van toepassing/Non-applicable
In watergevoelig gebied
Niet van toepassing/Non-applicable
Marie Pailhe
Rue Cornuchamp 47 , 4260 Braives