
UITZONDERLIJKE STENEN WONING IN BIESME MET 18A GROND
Vanaf € 600 000




+25 foto's weergeven

























Huis
Halfopen
4 slaapkamer(s)
2 badkamer(s)
370 m² woonoppervlakte
1,857 m² grondoppervlakte
Pandcode: 1418077
Beschrijving van het pand
Specificaties
Kenmerken
Algemeen
Woonoppervlakte
370.00m²
Grondoppervlakte
1857.00m²
Breedte grond
29.00m
Type oppervlakte
Netto
Oriëntatie perceel
Zuid
Omgeving
Residentieel
Landelijk
Omgeving school
Nabij openbaar vervoer
Vrij zicht
Kadastraal inkomen
€814,00
ERA Comfort Garantie
Basic
Verwarming
Type
Centrale verwarming
Radiator
Radiatoren
Verwarmingsmateriaal
Hout
Zonnepanelen
Pellets
Diversen
Schrijnwerk
Hout
Dubbele beglazing
Isolatie
Muur
Dakisolatie
Zie energieprestatiecertificaat
Warm water
Boiler op zonne-energie
Doorstroomsysteem op CV
Boiler op CV
Gebouw
Aantal verdiepingen
2
Lift aanwezig
Nee
Zonnepanelen
Zonnepanelen
Zonnepanelen aanwezig – Inbegrepen in de prijs
Details
Tuin
Wasplaats
Bureel
Kelder
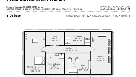
Slaapkamer
Slaapkamer
Slaapkamer
Slaapkamer
Stookruimte
Keuken
Dressing
Polyvalente ruimte
Garage
Inkomhal
Living
Badkamer
Douchekamer
Eetkamer
Mezzanine
Mezzanine
Woonkamer
Terras
Terras
Technische en juridische informatie
Algemeen
Beschermd erfgoed
Nee
Opgenomen in een inventaris van onroerend erfgoed
Nee
Energie en elektriciteit
Elektrische keuring
Keuringsverslag - Conform
Nutsvoorzieningen
Riolering: aan te sluiten
Elektriciteit: aan te sluiten
Water: aan te sluiten
EPC-certificaat
Ja
Energielabel
C
Certificaatnummer
20241202015922
Berekend specifiek energieverbruik
237
Berekend totaal energieverbruik
87779
Planningsinformatie
Stedenbouwkundige vergunning
Vergunning uitgereikt
Stedenbouwkundige verplichting
Ja
In inventaris van de niet uitgebate bedrijfsruimten
Nee
Voorwerp van rooiplan
Nee
Verkavelingsvergunning uitgereikt
Nee
Voorkoopsrecht ruimtelijke ordening
Nee
Overstromingsgebied
Onroerend goed, niet gelegen in een overstromingsgebied
Renovatieverplichting
Niet van toepassing/Non-applicable
In watergevoelig gebied
Niet van toepassing/Non-applicable
Sluiten
