Maison 4 façades avec garage dans le beau village de Aye

Vanaf € 310 000

Open Huizen Dag op 06/12 van 13:00 tot 14:00

Beschrijving van het pand

[[ DIT PAND NEEMT DEEL AAN DE ERA OPEN HUIZEN DAG OP 6/12 VAN 13:00 TOT 14:00 ]]

Specificaties

Kenmerken

Algemeen

Woonoppervlakte
156.00m²
Grondoppervlakte
848.00m²
Exploiteerbare oppervlakte
134.20m²
Breedte grond
22.00m
Type oppervlakte
Bruto
Oriëntatie perceel
Noord-West
Oriëntatie voorgevel
Zuid-Oost
Omgeving
Woonkern
Groene omgeving
Omgeving school
Invalswegen
Kadastraal inkomen
€870,00

Verwarming

Type
Centrale verwarming
Radiator
Radiatoren
Verwarmingsmateriaal
Stookolie

Diversen

Schrijnwerk
PVC
Dubbele beglazing
Isolatie
Lijstwerk
Zie energieprestatiecertificaat
Warm water
Boiler op CV

Gebouw

Bouwjaar
1994
Lift aanwezig
Nee

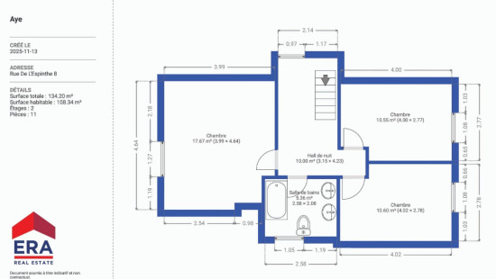
Inkomhal

Berekende oppervlakte
8 m²

Hal

Berekende oppervlakte
2 m²

Toilet

Berekende oppervlakte
1 m²

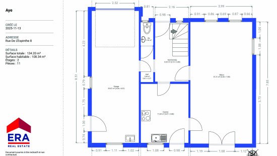
Keuken

Berekende oppervlakte
12 m²

Living

Berekende oppervlakte
31 m²

Garage

Berekende oppervlakte
26 m²

Nachthal

Berekende oppervlakte
10 m²

Badkamer

Berekende oppervlakte
5 m²

Slaapkamer

Berekende oppervlakte
18 m²
1 slaapkamer(s) mogelijk

Slaapkamer

Berekende oppervlakte
10 m²
1 slaapkamer(s) mogelijk

Slaapkamer

Berekende oppervlakte
10 m²
1 slaapkamer(s) mogelijk

Algemeen

Beschermd erfgoed
Nee
Opgenomen in een inventaris van onroerend erfgoed
Nee

Energie en elektriciteit

Nutsvoorzieningen
Elektriciteit
Regenwaterput
Aansluiting riolering
Kabeldistributie
Stadswater
Telefoon
Internet
EPC-certificaat
Ja
Energielabel
E
E-peil
E
Certificaatnummer
20170224015589
Berekend specifiek energieverbruik
381
CO2-uitstoot
94.00
Berekend totaal energieverbruik
59261

Planningsinformatie

Stedenbouwkundige vergunning
Vergunning uitgereikt
Stedenbouwkundige verplichting
Nee
In inventaris van de niet uitgebate bedrijfsruimten
Nee
Voorwerp van rooiplan
Nee
Herstelmaatregel
Geen rechterlijke herstelmaatregel of bestuurlijke maatregel opgelegd
Verkavelingsvergunning uitgereikt
Nee
Voorkoopsrecht ruimtelijke ordening
Nee
Stedelijke bestemming
La zone d'habitat
Overstromingsgebied
Onroerend goed, niet gelegen in een overstromingsgebied
Renovatieverplichting
Niet van toepassing/Non-applicable
In watergevoelig gebied
Niet van toepassing/Non-applicable
Sluiten
Julien Pleinnevaux
rue Espinthe 8 , 6900 AYE