
TE RENOVEREN WONING OP UITZONDERLIJKE PERCEEL VAN 2.140 M²
€ 250 000
Open Huizen Dag op 14/03 van 13:00 tot 14:00




+18 foto's weergeven


















Huis
Halfopen
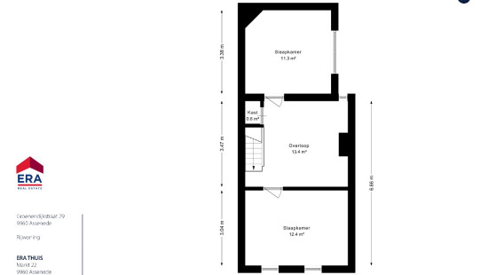
3 slaapkamer(s)
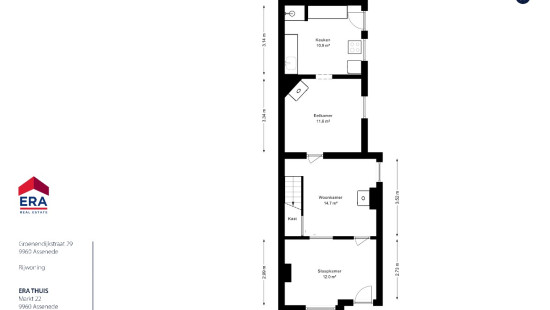
99 m² woonoppervlakte
2,140 m² grondoppervlakte
F
Pandcode: 1438401
Beschrijving van het pand
Specificaties
Kenmerken
Algemeen
Woonoppervlakte
99.00m²
Grondoppervlakte
2140.00m²
Bebouwde oppervlakte
59.80m²
Breedte grond
12.50m
Type oppervlakte
Bruto
Oriëntatie perceel
NW
Omgeving
Groene omgeving
Residentieel
Kadastraal inkomen
€230,00
Verwarming
Type
Individuele verwarming
Radiator
Kachel(s)
Directe verwarming
Verwarmingsmateriaal
Hout
Kolen
Diversen
Schrijnwerk
Hout
Enkele beglazing
Dubbele beglazing
Metaal
Isolatie
Beglazing
Detailinfo op aanvraag
Zie energieprestatiecertificaat
Warm water
Boiler Elektrisch
Gebouw
Bouwjaar
1934
Lift aanwezig
Nee
Details
Slaapkamer
Slaapkamer
Slaapkamer
Woonkamer
Kelder
Eetkamer
Keuken
Tuin
Berging
Atelier
Technische en juridische informatie
Algemeen
Beschermd erfgoed
Nee
Opgenomen in een inventaris van onroerend erfgoed
Nee
Energie en elektriciteit
Elektrische keuring
Keuringsverslag - Niet conform
Nutsvoorzieningen
Elektriciteit
Aardgas aanwezig in de straat
Stadswater
Detailinfo op aanvraag
EPC-certificaat
Ja
Energielabel
F
Certificaatnummer
20260210-0003797795-RES-1
Berekend specifiek energieverbruik
1386
Planningsinformatie
Stedenbouwkundige vergunning
Woning gebouwd voor 1962
Stedenbouwkundige verplichting
Ja
In inventaris van de niet uitgebate bedrijfsruimten
Nee
Voorwerp van rooiplan
Nee
Herstelmaatregel
Geen rechterlijke herstelmaatregel of bestuurlijke maatregel opgelegd
Verkavelingsvergunning uitgereikt
Nee
Voorkoopsrecht ruimtelijke ordening
Nee
Stedelijke bestemming
Woongebied met landelijk karakter
Overstromingsgebied
Onroerend goed, niet gelegen in een overstromingsgebied
P(erceel) score
klasse A
G(ebouw) score
klasse A
Renovatieverplichting
Van toepassing/Applicable
In watergevoelig gebied
Niet van toepassing/Non-applicable

Bezoek tijdens de Open Huizen Dag
Bezoek de ERA Open Huizen Dag en geniet van onze ‘fast lane ervaring’! Inschrijven is niet verplicht, maar zo kunnen we je wel beter informeren voor- en tijdens je bezoek.
Sluiten
