🌳 Rustig gelegen terrein vol potentieel!

Vanaf € 69 000

Beschrijving van het pand

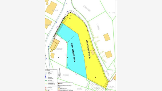
Ontdek dit mooie terrein gelegen in een rustige en groene omgeving, hier aangeboden als een individueel lot.
Ideaal om uw bouwproject te realiseren, met tal van mogelijkheden in een aangename omgeving en weinig inkijk.
💰 Bieden vanaf €69.000, onder voorbehoud van aanvaarding door de eigenaar.
⏳ Wacht niet te lang, mooie opportuniteit!
📩 Contacteer mij voor meer informatie.

Specificaties

Kenmerken

Algemeen

Grondoppervlakte
2202.00m²
Breedte grond
18.00m
Type oppervlakte
Bruto
Oriëntatie perceel
Noord-Oost
Omgeving
Groene omgeving
Landelijk

Gebouw

Verdieping
0
Lift aanwezig
Nee

Algemeen

Beschermd erfgoed
Nee
Opgenomen in een inventaris van onroerend erfgoed
Nee

Energie en elektriciteit

Energielabel
-

Planningsinformatie

Stedenbouwkundige vergunning
Geen vergunning uitgereikt
Stedenbouwkundige verplichting
Nee
In inventaris van de niet uitgebate bedrijfsruimten
Nee
Voorwerp van rooiplan
Nee
Verkavelingsvergunning uitgereikt
Nee
Voorkoopsrecht ruimtelijke ordening
Nee
Overstromingsgebied
Onroerend goed, niet gelegen in een overstromingsgebied
Renovatieverplichting
Niet van toepassing/Non-applicable
In watergevoelig gebied
Niet van toepassing/Non-applicable
Sluiten
Florian PIRAGINE
Trou Perdu 0 , 5300 Andenne