
Uitzonderlijke gelijkvloerse woning met 5 slpks in Arlon
In optie - prijs op verzoek




+15 foto's weergeven















Huis
Open
5 slaapkamer(s)
2 badkamer(s)
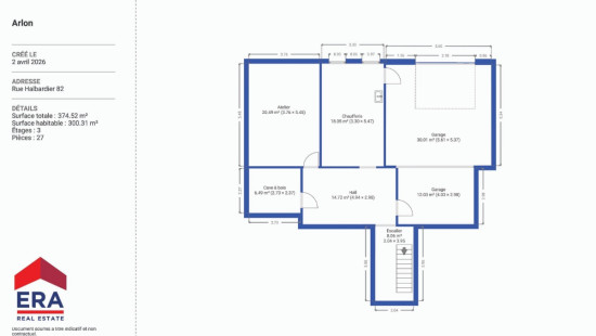
288 m² woonoppervlakte
1,990 m² grondoppervlakte
D
Pandcode: 1474635
Beschrijving van het pand
Specificaties
Kenmerken
Algemeen
Woonoppervlakte
288.00m²
Grondoppervlakte
1990.00m²
Type oppervlakte
Bruto
Omgeving
Groene omgeving
Residentieel
Omgeving school
Nabij openbaar vervoer
Nabij treinstation
Vrij zicht
Invalswegen
Nabij ziekenhuis
Kadastraal inkomen
€1596,00
Verwarming
Type
Centrale verwarming
Radiator
Fotovoltaïsche paneel
Inbouwhaard
Radiatoren
Verwarmingsketel
Verwarmingsmateriaal
Hout
Stookolie
Diversen
Schrijnwerk
Aluminium
PVC
Dubbele beglazing
Isolatie
Muur
Warm water
Boiler op CV
Gebouw
Bouwjaar
1969
Lift aanwezig
Nee
Details
Slaapkamer
Slaapkamer
Slaapkamer
Slaapkamer
Tuin
Atelier
Stookruimte
Garage
Kelder
Hal
Garage
Living
Bureel
Inkomhal
Keuken
Toilet
Badkamer
Hal
Slaapkamer
Zolder
Zolder
Hal
Polyvalente ruimte
Douchekamer
Terras
Technische en juridische informatie
Algemeen
Beschermd erfgoed
Nee
Opgenomen in een inventaris van onroerend erfgoed
Nee
Energie en elektriciteit
Elektrische keuring
Keuringsverslag - Conform
Nutsvoorzieningen
Elektriciteit
Aansluiting riolering
Kabeldistributie
Fotovoltaïsche panelen
Stadswater
Telefoon
Elektriciteit individueel
Internet
EPC-certificaat
Ja
Energielabel
D
EPB
D
E-peil
D
Certificaatnummer
20260313003807
Berekend specifiek energieverbruik
267
CO2-uitstoot
66.00
Berekend totaal energieverbruik
76975
Planningsinformatie
Stedenbouwkundige vergunning
Vergunning uitgereikt
Stedenbouwkundige verplichting
Ja
In inventaris van de niet uitgebate bedrijfsruimten
Nee
Voorwerp van rooiplan
Nee
Herstelmaatregel
Geen rechterlijke herstelmaatregel of bestuurlijke maatregel opgelegd
Verkavelingsvergunning uitgereikt
Nee
Voorkoopsrecht ruimtelijke ordening
Nee
Renovatieverplichting
Niet van toepassing/Non-applicable
In watergevoelig gebied
Niet van toepassing/Non-applicable
Sluiten
