Instapklare woning met 3 slaapkamers, oprit en grote tuin

€ 299 000

Open Huizen Dag op 13/06 van 13:00 tot 14:00

Beschrijving van het pand

[[ DIT PAND NEEMT DEEL AAN DE ERA OPEN HUIZEN DAG OP 13/6 VAN 13:00 TOT 14:00 ]]

Ben je op zoek naar een instapklare woning met mogelijks 3 slaapkamers, oprit en grote tuin in Aalst? Gevonden!
Deze verzorgde woning geniet van een uitstekende ligging met een vlotte verbinding naar alle nodige voorzieningen. Winkels, scholen, openbaar vervoer en het ziekenhuis bevinden zich letterlijk binnen handbereik. Bovendien bevindt de woning zich op een boogscheut van de R41 en dankzij de nieuwe fietstunnel ben je in slechts enkele minuten in het centrum van de stad. Ook buiten heeft deze eigendom heel wat te bieden, met een makkelijk te onderhouden grote tuin, een aangenaam terras en een praktische toegang langs de achterzijde. Extra troeven zijn de vernieuwde keuken, badkamer en vloeren (2022), de conforme elektriciteit tot 2048 en de reeds uitgevoerde energetische verbeteringen zoals extra isolatie in de plafonds & berging én een volledig vernieuwd en geïsoleerd plat dak. Hierdoor ligt het werkelijke energieverbruik vandaag lager dan het EPC van 2021 doet vermoeden.
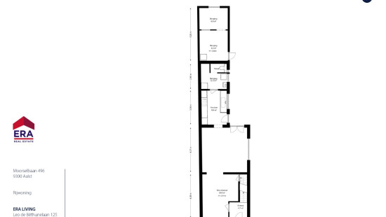
Via de inkomhal kom je in de lichtrijke leefruimte van 34 m², die aansluit op de geïnstalleerde keuken met vaatwas en de praktische berging/wasplaats met extra toilet. Vanuit de woning heb je een mooie connectie met buiten, waar je naast het terras en de ruime tuin ook nog beschikt over een extra buitenberging van 14m². Op de verdieping bevinden zich twee slaapkamers van 16m² en 9 m², samen met de vernieuwde badkamer van 8m². De zolderverdieping van 23 m² is bereikbaar via een vaste trap door de grootste slaapkamer en biedt nog heel wat mogelijkheden, waaronder het creëren van een volwaardige derde slaapkamer.

Specificaties

Kenmerken

Algemeen

Woonoppervlakte
139.00m²
Grondoppervlakte
458.00m²
Bebouwde oppervlakte
294.00m²
Breedte grond
5.50m
Type oppervlakte
Bruto
Omgeving
Residentieel
Kadastraal inkomen
€528,00

Verwarming

Type
Centrale verwarming
Radiator
Condensatieketel
Verwarmingsmateriaal
Gas

Diversen

Schrijnwerk
Dubbele beglazing
Isolatie
Detailinfo op aanvraag
Warm water
Boiler op CV

Gebouw

Bouwjaar
1952
Allerlei
Bouwmethode: Traditionele bouw
Lift aanwezig
Nee

Slaapkamer

1 slaapkamer(s) mogelijk

Slaapkamer

1 slaapkamer(s) mogelijk

Badkamer

Tuin

Berekende oppervlakte
200 m²

Staanplaats

Terras

Slaapkamer

Beschrijving
Dit is de zolder.
1 slaapkamer(s) mogelijk

Kelder

Algemeen

Beschermd erfgoed
Nee
Opgenomen in een inventaris van onroerend erfgoed
Nee

Energie en elektriciteit

Elektrische keuring
Keuringsverslag - Conform
Nutsvoorzieningen
Gas
Elektriciteit
Aansluiting riolering
Telefoon
Internet
EPC-certificaat
Ja
Energielabel
D
Certificaatnummer
20211003-0002471901-RES-1
Berekend specifiek energieverbruik
393

Planningsinformatie

Stedenbouwkundige vergunning
Woning gebouwd voor 1962
Stedenbouwkundige verplichting
Nee
In inventaris van de niet uitgebate bedrijfsruimten
Nee
Voorwerp van rooiplan
Nee
Herstelmaatregel
Geen rechterlijke herstelmaatregel of bestuurlijke maatregel opgelegd
Verkavelingsvergunning uitgereikt
Nee
Voorkoopsrecht ruimtelijke ordening
Nee
Stedelijke bestemming
Woongebied
Overstromingsgebied
Onroerend goed, niet gelegen in een overstromingsgebied
P(erceel) score
klasse A
G(ebouw) score
klasse A
Renovatieverplichting
Niet van toepassing/Non-applicable
In watergevoelig gebied
Niet van toepassing/Non-applicable
Sluiten
Marie Van Caesbroeck
Moorselbaan 496 , 9300 Aalst