Beschrijving van het pand

Instapklaar hoekappartement met prachtig groen vergezicht, gelegen op een toplocatie in Aalst.
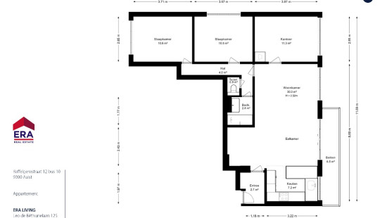
Dit lichtrijke appartement werd volledig vernieuwd in 2020 en is afgewerkt met oog voor comfort en kwaliteit. De uitgeruste keuken biedt alle nodige voorzieningen en sluit mooi aan op de ruime leefruimte van maar liefst 30 m². Naast de badkamer bevindt zich een apart toilet.
Met drie volwaardige slaapkamers van elk ca. 11 m² is er voldoende plaats voor een bureau of hobbyruimte. Het appartement is bovendien overal voorzien van hoogrendementsbeglazing (HR-glas), wat bijdraagt aan een goede isolatie en energie-efficiëntie (EPC-label C).

Verder is er een groot terras waar je in alle rust kan ontspannen met een prachtig zicht op het groen. Extra opbergruimte is beschikbaar in de privatieve kelderberging.

Het appartement bevindt zich op de derde verdieping en is bereikbaar met een lift. Daarnaast is er gratis parkeergelegenheid voorzien. Er is ook de mogelijkheid om een parkeerplaats te huren of aan te kopen.
Dit appartement is ideaal als starterswoning, als investering of voor wie op zoek is naar een gezellig en ruim appartement met alle comfort, op een uitstekende ligging in Aalst.

Specificaties

Kenmerken

Algemeen

Woonoppervlakte
86.00m²
Bebouwde oppervlakte
4783.00m²
Breedte grond
150.10m
Type oppervlakte
Bruto
Oriëntatie perceel
W
Omgeving
Residentieel
Kadastraal inkomen
€790,00

Verwarming

Type
Collectieve verwarming / Gemeenschappelijke verwarming
Radiator
Radiatoren
Verwarmingsmateriaal
Gas

Diversen

Schrijnwerk
Superisolerend hoogrendementsglas
Isolatie
Detailinfo op aanvraag
Warm water
Boiler op CV

Gebouw

Bouwjaar
1967
Verdieping
3
Allerlei
Bouwmethode: Traditionele bouw
Lift aanwezig
Ja

Slaapkamer

1 slaapkamer(s) mogelijk

Slaapkamer

1 slaapkamer(s) mogelijk

Slaapkamer

1 slaapkamer(s) mogelijk

Badkamer

Keuken

Living

Eetkamer

Hal

Kelder

Algemeen

Beschermd erfgoed
Nee
Opgenomen in een inventaris van onroerend erfgoed
Nee

Energie en elektriciteit

Elektrische keuring
Keuringsverslag in aanvraag
Nutsvoorzieningen
Elektriciteit
Aansluiting riolering
Telefoon
Internet
EPC-certificaat
Ja
Energielabel
C
Certificaatnummer
20260323-0003830523-RES-1
Berekend specifiek energieverbruik
231

Planningsinformatie

Stedenbouwkundige vergunning
Geen vergunning uitgereikt
Stedenbouwkundige verplichting
Ja
In inventaris van de niet uitgebate bedrijfsruimten
Nee
Voorwerp van rooiplan
Nee
Herstelmaatregel
Geen rechterlijke herstelmaatregel of bestuurlijke maatregel opgelegd
Verkavelingsvergunning uitgereikt
Ja
Voorkoopsrecht ruimtelijke ordening
Nee
Stedelijke bestemming
Parkgebied;Woongebied
Overstromingsgebied
Onroerend goed, niet gelegen in een overstromingsgebied
P(erceel) score
klasse B
G(ebouw) score
klasse A
Renovatieverplichting
Niet van toepassing/Non-applicable
In watergevoelig gebied
Niet van toepassing/Non-applicable
Sluiten
Sander De Vuyst
Raffelgemstraat 12 10, 9300 Aalst