Instapklaar appartement met terras en parking in Aalst

Verkocht

Beschrijving van het pand

Ben je op zoek naar een instapklaar en energiezuinig appartement met 2 slaapkamers, terras en parking in Aalst? Gevonden!
Op een toplocatie in Aalst bevindt zich dit verzorgde en instapklare appartement, gelegen op de derde verdieping van een residentie met tal van extra voorzieningen. Het wonen in deze residentie biedt heel wat comfort, zoals een ruime parking, een verzorgd park, een centraal afvalpunt en een beveiligde fietsenstalling. Bovendien bevinden een supermarkt, lagere school, apotheek en openbaar vervoer zich op wandelafstand. De oprit van de E40 bereik je op slechts 2 km en op amper 10 minuten wandelen sta je in het centrum van Aalst. Dit appartement combineert dan ook een aangename indeling met een uitstekende ligging, en is ideaal als starterswoning, interessante investering of comfortabele thuisbasis voor wie op zoek is naar praktisch wooncomfort. Dankzij de hoogrendementsbeglazing en airco geniet je bovendien van een gunstig EPC-label B. Er is ook een asbestveilig attest en conforme keuring van de elektriciteit aanwezig tot 2035 en een privatieve kelderberging inbegrepen. Tot slot zijn er gratis parkeermogelijkheden en is er de mogelijkheid om een parkeerplaats te huren.
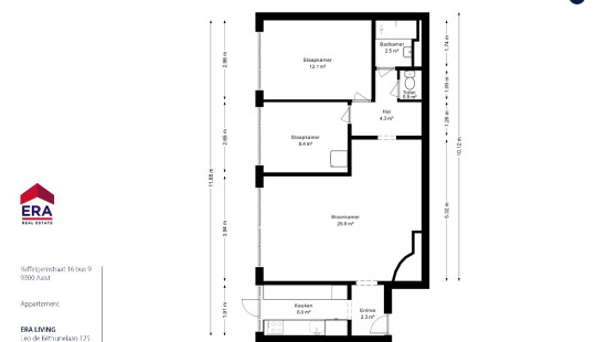
Binnenin word je verwelkomd in een lichtrijke en open leefruimte van 25 m², voorzien van airco voor extra comfort. Aansluitend vind je de geïnstalleerde keuken met inductiekookplaat, dampkap, oven, ingebouwde koelkast en diepvries, aangevuld met een gezellig ontbijthoekje. Verder beschikt het appartement over twee slaapkamers van 8 m² en 12 m², een nieuwe badkamer en een apart toilet naast de badkamer, wat zorgt voor een praktische en functionele indeling.
Ben jij op zoek naar een comfortabel appartement op een uitstekende ligging in Aalst? Contacteer ons dan snel voor een bezoek!

Specificaties

Kenmerken

Algemeen

Woonoppervlakte
75.00m²
Breedte grond
150.10m
Type oppervlakte
Bruto
Oriëntatie perceel
W
Omgeving
Residentieel
Omgeving school
Nabij openbaar vervoer
Nabij treinstation
Nabij ziekenhuis
Kadastraal inkomen
€674,00
Beschrijving gemeenschappelijke lasten
275

Verwarming

Type
Centrale verwarming
Radiator
Radiatoren met thermostatische kraan
Verwarmingsmateriaal
Gas
Stookolie
Warmtepomp (lucht)

Diversen

Schrijnwerk
Superisolerend hoogrendementsglas
Isolatie
Detailinfo op aanvraag
Warm water
Boiler op CV

Gebouw

Bouwjaar
1967
Verdieping
3
Allerlei
Bouwmethode: Traditionele bouw
Lift aanwezig
Ja

Slaapkamer

1 slaapkamer(s) mogelijk

Slaapkamer

1 slaapkamer(s) mogelijk

Badkamer

Garage

Terras

Algemeen

Beschermd erfgoed
Nee
Opgenomen in een inventaris van onroerend erfgoed
Nee

Energie en elektriciteit

Elektrische keuring
Keuringsverslag - Conform
Nutsvoorzieningen
Elektriciteit
Aansluiting riolering
Stadswater
Telefoon
Internet
EPC-certificaat
Ja
Energielabel
B
Certificaatnummer
20260323-0003830358-RES-1
Berekend specifiek energieverbruik
115

Planningsinformatie

Stedenbouwkundige vergunning
Geen vergunning uitgereikt
Stedenbouwkundige verplichting
Ja
In inventaris van de niet uitgebate bedrijfsruimten
Nee
Voorwerp van rooiplan
Nee
Herstelmaatregel
Geen rechterlijke herstelmaatregel of bestuurlijke maatregel opgelegd
Verkavelingsvergunning uitgereikt
Ja
Voorkoopsrecht ruimtelijke ordening
Nee
Stedelijke bestemming
Parkgebied;Woongebied
Overstromingsgebied
Onroerend goed, niet gelegen in een overstromingsgebied
P(erceel) score
klasse B
G(ebouw) score
klasse A
Renovatieverplichting
Niet van toepassing/Non-applicable
In watergevoelig gebied
Niet van toepassing/Non-applicable
Sluiten
Marie Van Caesbroeck
Raffelgemstraat 16 9, 9300 Aalst