
Maison à vendre à Houffalize (2 corps de logis)
En option - prix sur demande




Afficher +15 photo(s)















Maison
3F
5 chambre(s)
2 salle(s) de bain(s)
229 m² de surface habitable
2,171 m² de surface de terrain
E
Code du bien : 1434687
Description du bien
Spécifications
Caractéristiques
Général
Surface habitable
229.00m²
Superficie du terrain
2171.00m²
Type de superficie
Brut
Environnement
Environnement social
Centre d'habitation
Boisé
Environnement verdoyant
Résidentiel
Rural
A proximité d'écoles
A proximité des transports en commun
Dans une vallée
Quartier de villas
Revenu cadastral net
€473,00
Garantie Confort ERA
Basic
Chauffage
Type
Chauffage central
Radiateurs
Cassette à bois
Radiateurs
Chaudière
Combustible chauffage
Bois
Mazout
Divers
Menuiserie
PVC
Bois
Double vitrage
Isolation
Détails sur demande
Eau chaude
Chauffe-eau sur chauffage central
Bâtiment
Année de construction
de 1900 à 1918
Ascenseur disponible
Non
Détails
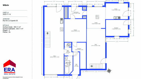
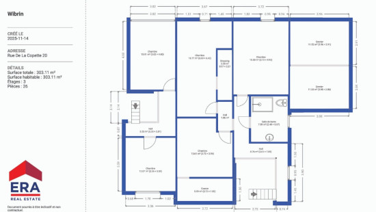
Chambre à coucher
Chambre à coucher
Chambre à coucher
Chambre à coucher
Chambre à coucher
Living
Espace polyvalent
Hall d'entrée
Toilette
Salle de bains
Chaufferie
Living
Cuisine
Cuisine
Buanderie
Salle de bains
Dressing
Grenier
Grenier
Grenier
Grenier
Jardin
Informations techniques et mentions légales
Général
Patrimoine classé
Non
Repris dans l’inventaire du patrimoine
Non
Énergie et électricité
Inspection électrique
Attestation électrique demandée
Raccordements
Raccordements aux égouts
Télédistribution
Panneaux photovoltaiques
Eau de ville
Téléphone
Électricité avec tarif de nuit
Internet
Certificat PEB
Oui
Classe énergétique
E
PEB
E
Niveau E
E
Numéro de certificat
20251125019115
Consommation spécifique d'énergie calculée
420
Emission de CO2
1.00
Consommation totale d'énergie calculée
96021
Information urbanistique
Permis d'urbanisme
Permis non accordé
obligation d'urbanisme
Oui
Dans l'inventaire des locaux inexploités
Non
Objet du plan de alignement
Non
Autorisation de lotissement
Non
Droit de préemption
Non
Destination urbaine
La zone agricole;La zone d'habitat à caractère rural
Obligation de rénovation
Niet van toepassing/Non-applicable
En zone sensible à l'eau
Niet van toepassing/Non-applicable
Fermer
