
Commerce
2F
61 m² de surface de terrain
Code du bien : 1437322
Description du bien
Spécifications
Caractéristiques
Général
Superficie du terrain
61.00m²
Type de superficie
Brut
Environnement
Zone touristique
Quartier commerçant
A proximité d'écoles
A proximité des transports en commun
Routes d'acces
Hôpital à proximité
Revenu cadastral net
€1246,00
Chauffage
Type
Chauffage central
Radiateurs
Chaudière
Combustible chauffage
Gaz
Divers
Menuiserie
Double vitrage
Isolation
Détails sur demande
Eau chaude
Boiler électrique
Bâtiment
Année de construction
1982
Ascenseur disponible
Non
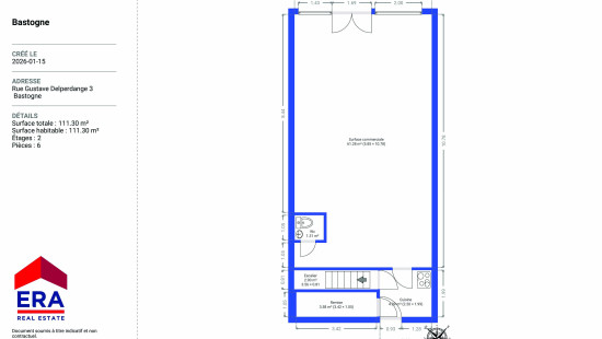
Détails
Espace polyvalent
Espace commercial
Toilette
Escalier
Cuisine
Espace polyvalent
Informations techniques et mentions légales
Général
Patrimoine classé
Non
Repris dans l’inventaire du patrimoine
Non
Énergie et électricité
Raccordements
Gaz
Electricité
Raccordements aux égouts
Eau de ville
Internet
Classe énergétique
-
Information urbanistique
Permis d'urbanisme
Permis accordé
obligation d'urbanisme
Oui
Dans l'inventaire des locaux inexploités
Non
Objet du plan de alignement
Non
mesure de récupération
Geen rechterlijke herstelmaatregel of bestuurlijke maatregel opgelegd
Autorisation de lotissement
Non
Droit de préemption
Non
Destination urbaine
Les zones d’activité économique mixte
Obligation de rénovation
Niet van toepassing/Non-applicable
En zone sensible à l'eau
Niet van toepassing/Non-applicable
Fermer













